Met een eigen account kun je panden volgen, opslaan als favoriet, je zoekprofiel opslaan en jouw eigen notities bij een huis maken.
+47

Overdracht | |
---|---|
Prijs | € 350.000,- k.k. |
Status | Onder bod |
Aanvaarding | In overleg |
Laatste wijziging | Maandag 13 oktober 2025 |
Bouw | |
---|---|
Type object | Eengezinswoning, woonhuis, eind woning |
Soort bouw | Bestaande bouw |
Bouwjaar | 1969 |
Dakbedekking | Bitumen |
Type dak | Platdak |
Isolatievormen | Gedeeltelijk dubbel glas |
Oppervlaktes en inhoud | |
---|---|
Perceeloppervlakte | 210 m² |
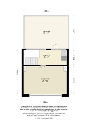
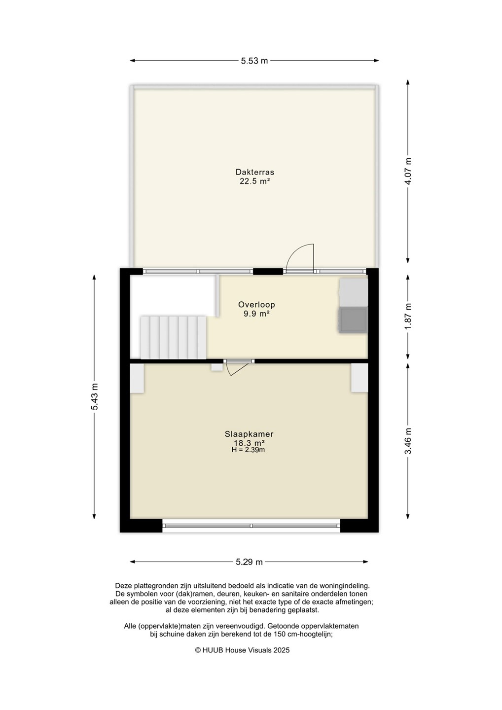
Woonoppervlakte | 133 m² |
Inhoud | 455 m³ |
Oppervlakte externe bergruimte | 7 m² |
Oppervlakte gebouwgebonden buitenruimte | 27 m² |
Indeling | |
---|---|
Aantal bouwlagen | 3 |
Aantal kamers | 5 (waarvan 4 slaapkamers) |
Locatie | |
---|---|
Ligging | Aan rustige weg In woonwijk |
Tuin | |
---|---|
Type | Achtertuin |
Hoofdtuin | Ja |
Oriëntering | Zuiden |
Heeft een achterom | Ja |
Staat | Normaal |
Tuin 2 - Type | Achtertuin |
Tuin 2 - Staat | Normaal |
Energieverbruik | |
---|---|
Energielabel | D |
CV ketel | |
---|---|
CV ketel | Intergas InComfort |
Warmtebron | Gas |
Combiketel | Ja |
Eigendom | Huur |
Uitrusting | |
---|---|
Warm water | CV-ketel |
Verwarmingssysteem | Centrale verwarming |
Glasvezelaansluiting aanwezig | Ja |
Tuin aanwezig | Ja |
Heeft schuur/berging | Ja |
Heeft ventilatie | Ja |
Kadastrale gegevens | |
---|---|
Kadastrale aanduiding | Lelystad K 1150 |
Perceeloppervlakte | 163 m² |
Omvang | Geheel perceel |
Eigendomsituatie | Eigen grond |
Kadastrale aanduiding | Lelystad K 3097 |
Perceeloppervlakte | 47 m² |
Omvang | Geheel perceel |
Eigendomsituatie | Eigen grond |
Met een eigen account kun je panden volgen, opslaan als favoriet, je zoekprofiel opslaan en jouw eigen notities bij een huis maken.