Beschrijving

Kam & Bronotte Makelaars biedt aan: Breehorn 90 te Lelystad!

Op zoek naar een ruime en verrassend ingedeelde eindwoning met 4 volwaardige slaapkamers, zonnige tuin en gelegen in een rustige, kindvriendelijke buurt? Dan is deze woning aan de Breehorn 90 in Lelystad absoluut een bezichtiging waard!

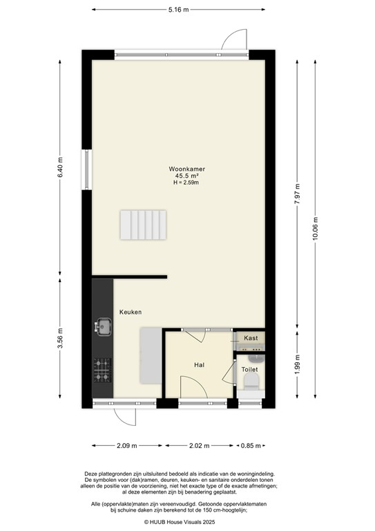
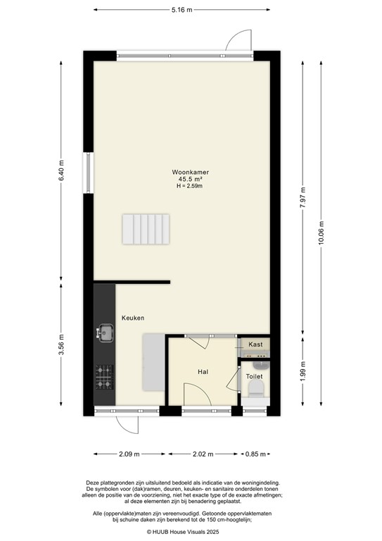
De woning heeft een woonoppervlakte van ca. 133 m² en staat op een perceel van 210 m² eigen grond. In 2019 is de woning gemoderniseerd met een nieuwe keuken en toilet. De begane grond beschikt over een ruime woonkamer van ca. 45m² en een moderne keuken met inbouwapparatuur. Op de verdiepingen vindt u meerdere slaapkamers, een vernieuwde badkamer en een ruime tweede verdieping met toegang tot een groot dakterras.

De bieden vanaf prijs betreft € 350.000,- k.k. De gestelde vraagprijs betreft een bieden vanaf prijs. 

Indeling:

Begane grond:
Entree/hal met meterkast en vernieuwde toiletruimte (2019). Vanuit de hal bereik je de moderne woonkamer met veel lichtinval door de enorme raampartijen. De woonkamer loopt door naar de vernieuwde keuken (2019) die is uitgerust met diverse inbouwapparatuur, waaronder een vaatwasser, koelkast, oven en magnetron. De begane grond is afgewerkt met een laminaatvloer. De absolute eyecatcher op de begane grond is de strak vormgegeven, moderne zwarte bordestrap.

Eerste verdieping:
Overloop met toegang tot meerdere slaapkamers (ca. 20,5 m², 7,5 m² en 6,1 m²). Deze kamers zijn ruim en praktisch ingericht. De badkamer beschikt over een wastafel met spiegel en een nette afwerking. Er bevindt zich ook een separaat toilet op deze verdieping.

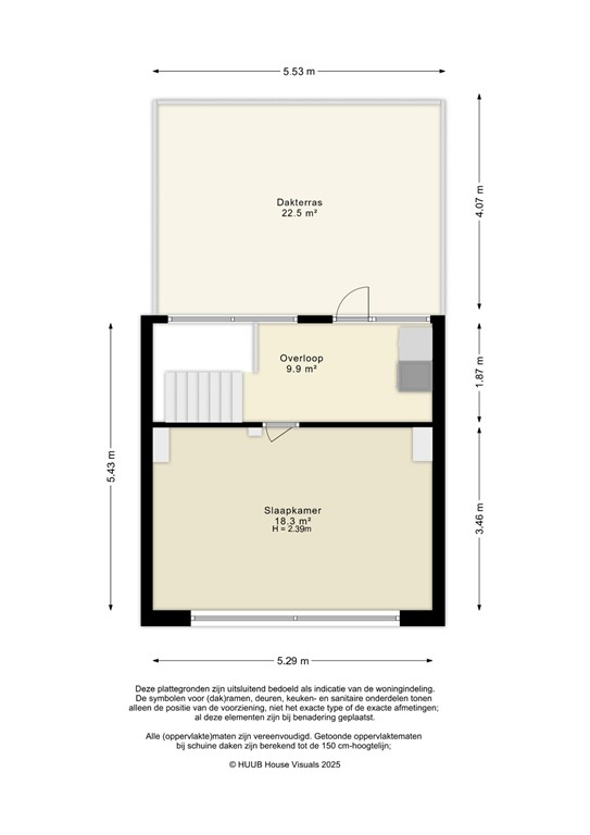
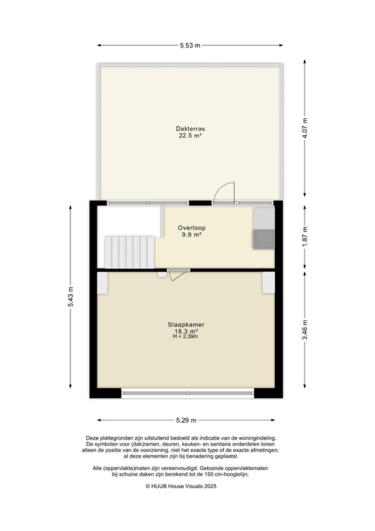
Tweede verdieping:
Via de vaste trap kom je op de tweede verdieping. Hier bevindt zich een grote extra slaapkamer (ca. 18,3 m²) met toegang tot het ruime dakterras (ca. 22,5 m²).

Tuin:
De woning beschikt over een zonnige achtertuin gelegen op het zuiden met achterom. De tuin is onderhoudsvriendelijk aangelegd en biedt volop mogelijkheden om te genieten van het buitenleven.

Bijzonderheden:
•	Woonoppervlakte ca. 133 m²
•	Perceeloppervlakte 210 m²
•	Bouwjaar 1969
•	Energielabel D 
•	Nieuwe keuken en toilet (2019)
•	Dak woning vernieuwd met bitumen (2019)
•	Kozijnen begane grond geschilderd in 2024
•	Laminaatvloer op de begane grond
•	Berging van ca 6,8m² aan de voorzijde
•	Achtertuin op het zonnige zuiden
•	Glasvezel aanwezig

Omgeving:
Breehorn 90 is gelegen in een rustige en kindvriendelijke wijk in Lelystad. Op loop en fietsafstand vindt u diverse scholen, speelgelegenheden, supermarkten en andere dagelijkse voorzieningen. Ook zijn alle voorzieningen zoals bushaltes en het NS-station snel bereikbaar, waardoor u binnen korte tijd in onder andere Almere of Amsterdam bent. Met de auto bereikt u eenvoudig de A6 richting de Randstad.

Maak snel een afspraak voor een bezichtiging en ervaar zelf het wooncomfort van deze ruime eengezinswoning. Wij laten u Breehorn 90 te Lelystad graag zien!

Kenmerken