Kam & Bronotte Makelaars
Kam & Bronotte Makelaars

Te koop: Maaidorser 7, 8314 BM Bant

€ 444.275,- v.o.n.

Beschrijving

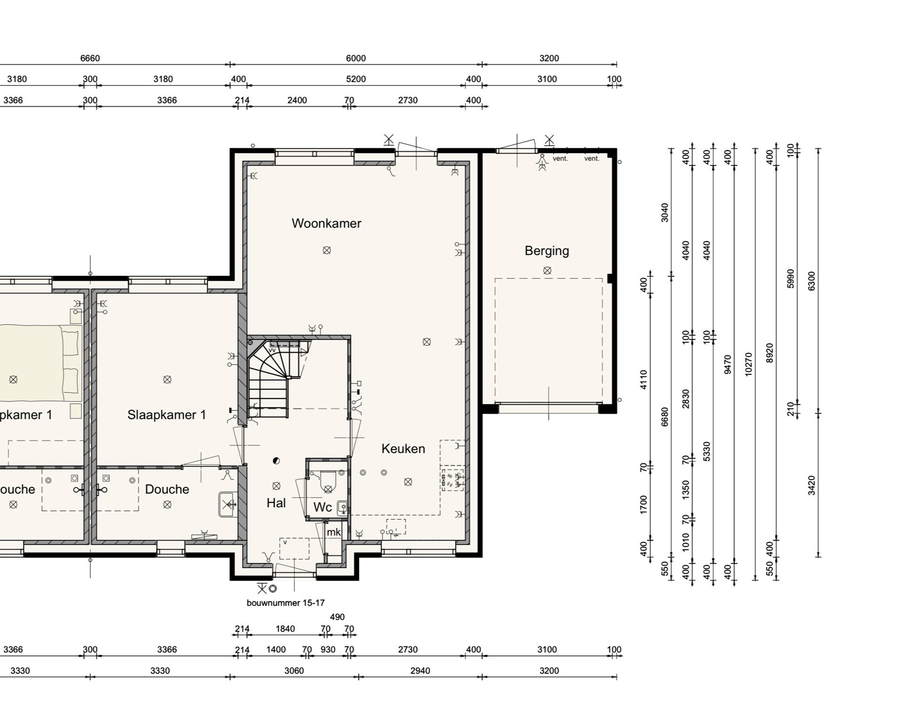
Twee-onder-een-kapwoningen type A

Type A bestaande uit 4 woningen, hiervan is er nog maar één beschikbaar, nummer 17, en heeft een slaapkamer en badkamer op de begane grond, samen met een ruime woonkamer en keuken.

Op de eerste verdieping zijn twee slaapkamers en een badkamer. Ze hebben een gebruiksoppervlakte van 102 m², en elke woning beschikt over een berging van 18,5 m². Iedere woning beschikt over een parkeerplaats op eigen terrein.

Prijzen vanaf € 429.000 exclusief meerwerk.

Bant is een dorp in de Noordoostpolder, Flevoland, met een gunstige ligging en goede voorzieningen. Voor een breed scala aan winkels, supermarkten en andere faciliteiten ligt Emmeloord op slechts 6 kilometer afstand. Ook Lemmer bevindt zich dichtbij, wat Bant een centrale en praktische locatie geeft.

Dankzij de nabijheid van de autosnelweg A6 ben je binnen enkele minuten onderweg naar grotere steden zoals Amsterdam en Utrecht. Deze bereikbaarheid maakt Bant ideaal voor forenzen die de rust van een dorpsomgeving willen combineren met goede verbindingen naar stedelijke gebieden.

Het dorp biedt een prettige leefomgeving met onder andere twee basisscholen, een sportvereniging en een dorpshuis. Openbaar vervoer is beschikbaar via buslijn 315 van Arriva, die Bant verbindt met omliggende plaatsen zoals Emmeloord en Lemmer.

Met de combinatie van rust, bereikbaarheid en voorzieningen is Bant een aantrekkelijke woonplek voor gezinnen, senioren en iedereen die waarde hecht aan een comfortabele en veelzijdige woonomgeving.

Kenmerken

Overdracht
Prijs € 444.275,- v.o.n.
Aanvaarding In overleg
Laatste wijziging Woensdag 29 april 2026
Bouw
Type object Eengezinswoning, woonhuis, twee onder een kap woning
Soort bouw Nieuwbouw
Bouwjaar 2026
Dakbedekking Bitumen
Type dak Platdak
Isolatievormen Volledig geïsoleerd
Oppervlaktes en inhoud
Perceeloppervlakte 296 m²
Woonoppervlakte 102 m²
Inhoud 474 m³
Oppervlakte overige inpandige ruimten 18 m²
Indeling
Aantal bouwlagen 2
Aantal kamers 3 (waarvan 3 slaapkamers)
Tuin
Type Achtertuin
Hoofdtuin Ja
Oriëntering Noorden
Staat Aangelegd onder architectuur
Tuin 2 - Type Achtertuin
Tuin 2 - Staat Aangelegd onder architectuur
Energieverbruik
Energielabel A+++
CV ketel
Warmtebron Gas
Combiketel Ja
Eigendom Eigendom
Uitrusting
Aantal parkeerplaatsen 1
Warm water CV-ketel
Verwarmingssysteem Centrale verwarming
Tuin aanwezig Ja
Kadastrale gegevens
Kadastrale aanduiding Noordoostpolder FX 840
Perceeloppervlakte 296 m²
Omvang Geheel perceel
Eigendomsituatie Eigen grond
Neem contact met mij op
Sluiten

Recent bekeken