Beschrijving

Twee-onder-een-kapwoningen type A

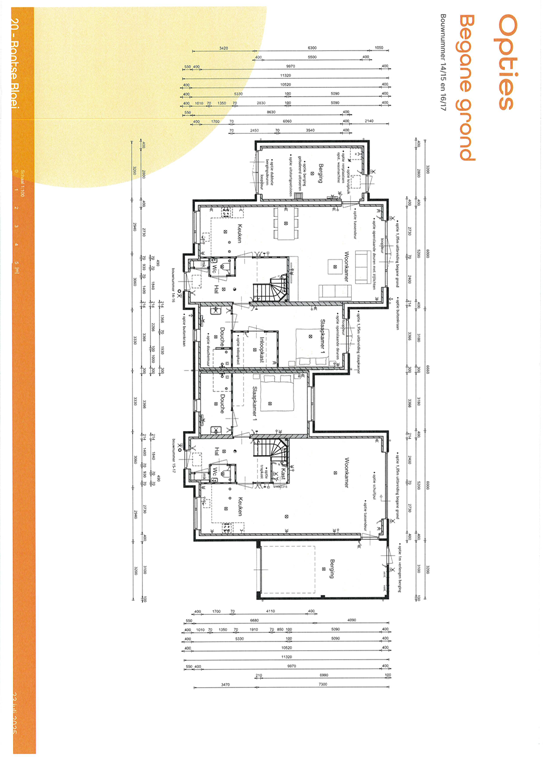
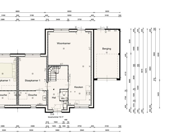
Type A bestaande uit 4 woningen, hiervan is er nog maar één beschikbaar, nummer 17, en heeft een slaapkamer en badkamer op de begane grond, samen met een ruime woonkamer en keuken. 

Op de eerste verdieping zijn twee slaapkamers en een badkamer. Ze hebben een gebruiksoppervlakte van 102 m², en elke woning beschikt over een berging van 18,5 m². Iedere woning beschikt over een parkeerplaats op eigen terrein.

Prijzen vanaf € 429.000 exclusief meerwerk.

Bant is een dorp in de Noordoostpolder, Flevoland, met een gunstige ligging en goede voorzieningen. Voor een breed scala aan winkels, supermarkten en andere faciliteiten ligt Emmeloord op slechts 6 kilometer afstand. Ook Lemmer bevindt zich dichtbij, wat Bant een centrale en praktische locatie geeft.

Dankzij de nabijheid van de autosnelweg A6 ben je binnen enkele minuten onderweg naar grotere steden zoals Amsterdam en Utrecht. Deze bereikbaarheid maakt Bant ideaal voor forenzen die de rust van een dorpsomgeving willen combineren met goede verbindingen naar stedelijke gebieden.

Het dorp biedt een prettige leefomgeving met onder andere twee basisscholen, een sportvereniging en een dorpshuis. Openbaar vervoer is beschikbaar via buslijn 315 van Arriva, die Bant verbindt met omliggende plaatsen zoals Emmeloord en Lemmer.

Met de combinatie van rust, bereikbaarheid en voorzieningen is Bant een aantrekkelijke woonplek voor gezinnen, senioren en iedereen die waarde hecht aan een comfortabele en veelzijdige woonomgeving.

Kenmerken