Kam & Bronotte Makelaars
Kam & Bronotte Makelaars
Verkocht onder voorbehoud

Verkocht onder voorbehoud: Montferland 10, 8245 BM Lelystad

€ 495.000,- k.k.

Beschrijving

Kam en Bronotte biedt aan: Montferland 10 te Lelystad

Op een (eind)kavel van 312 m² eigen grond staat deze zeer goed onderhouden half vrijstaande woning (bouwjaar 1998) met een inpandig bereikbare stenen garage. De woning onderscheidt zich door een uitzonderlijk ruime begane grond, een praktische indeling en een fraai aangelegde, diepe achtertuin.

Bieden vanaf € 495.000,- k.k.

Entree, hal met toiletruimte. Vanuit de hal is de inpandig bereikbare stenen garage toegankelijk (circa 5,99 x 2,97 meter), voorzien van een opstelplaats voor wasmachine en droger.
De tuingerichte woonkamer met plavuizenvloer is opvallend ruim en breed opgezet (circa 8,69 meter breed) en beschikt over een extra zijraam en openslaande deuren naar de tuin, wat zorgt voor een prettige lichtinval en een ruimtelijk gevoel. Aansluitend is er volop ruimte voor een grote eettafel.

Aan de voorzijde van de woning bevindt zich de woonkeuken, met een breedte van circa 3,26 meter en een diepte van circa 2,49 meter, uitgevoerd met een inbouwkeuken en diverse inbouwapparatuur.

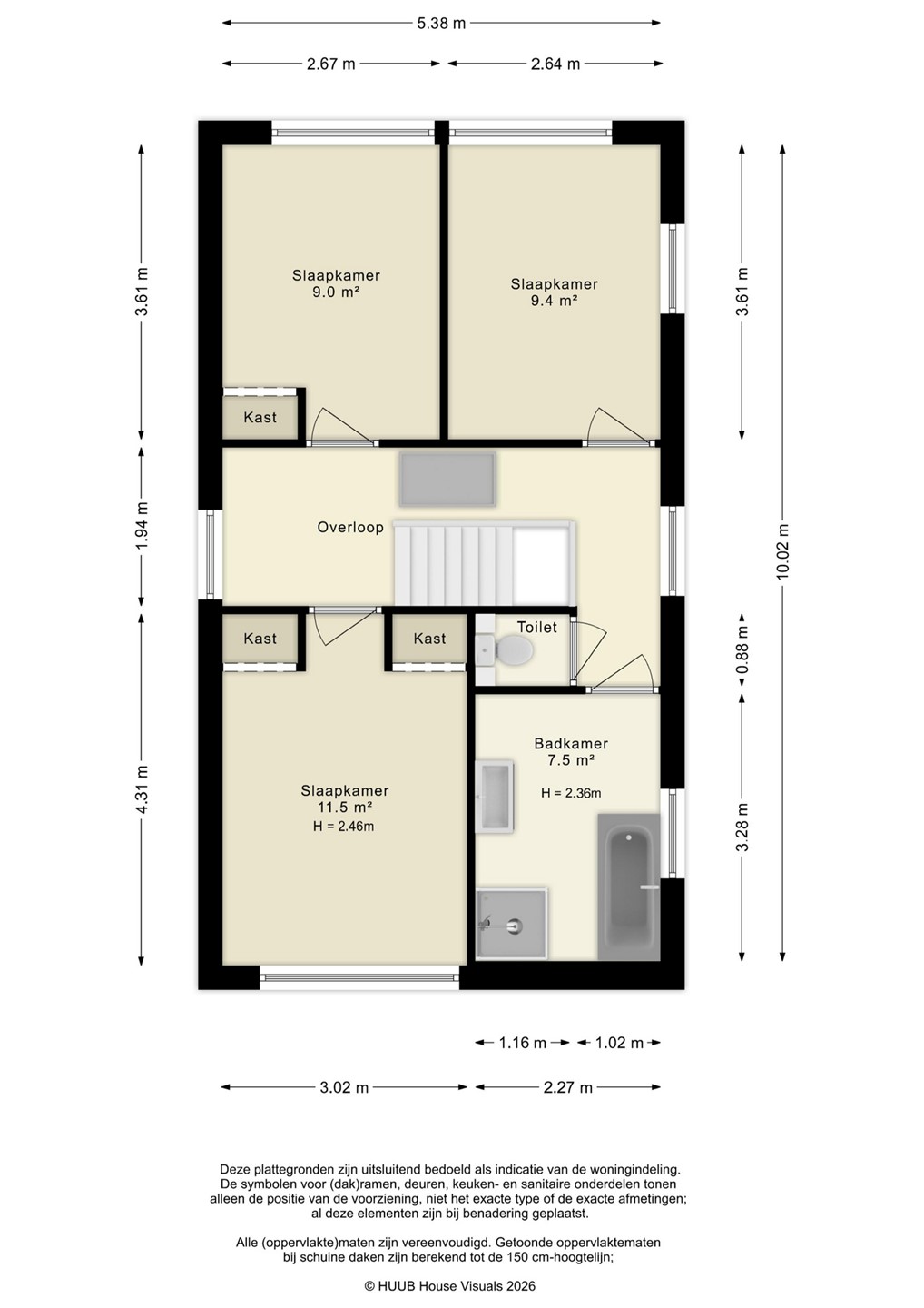
Eerste verdieping:
Overloop. Op de eerste verdieping bevinden zich drie ruime slaapkamers te weten 11,5 m², 9,4 m² en circa 9,0 m².

De badkamer is compleet uitgevoerd met ligbad, douche, wastafelmeubel en raam voor daglicht en ventilatie. Daarnaast is er een separate toiletruimte op de overloop.

Via een vlizotrap is de vliering bereikbaar, ideaal als extra bergruimte.

Tuin:
De achtertuin is circa 17 meter diep, onderhoudsarm aangelegd en beschikt over een vrijstaande houten berging en een praktische achterom. Aan de voorzijde van de woning bevindt zich een ruime oprit met parkeergelegenheid voor maar liefst drie auto’s op eigen terrein, wat in deze woonwijk een duidelijke meerwaarde is.

De woning is gelegen in een geliefde en kindvriendelijke woonomgeving, nabij buurtwinkelcentrum De Tjalk, diverse basisscholen en station Lelystad, waardoor voorzieningen en openbaar vervoer binnen handbereik zijn.

Bijzonderheden:
Zeer goed onderhouden half vrijstaande woning
Inpandig bereikbare stenen garage
Brede, tuingerichte woonkamer met veel lichtinval
Woonkeuken met inbouwapparatuur
Drie volwaardige slaapkamers
Complete badkamer en separaat toilet
Extra bergruimte via vliering
Diepe, onderhoudsarme achtertuin
Oprit met parkeergelegenheid voor 3 auto’s op eigen terrein
12 zonnepanelen
Volledig geïsoleerd, energielabel A
Gelegen in de geliefde en kindvriendelijke Landstrekenwijk
Oplevering in overleg

Kenmerken

Overdracht
Prijs € 495.000,- k.k.
Status Verkocht onder voorbehoud
Aanvaarding In overleg
Laatste wijziging Donderdag 21 mei 2026
Bouw
Type object Eengezinswoning, woonhuis, geschakelde woning
Soort bouw Bestaande bouw
Bouwjaar 1998
Dakbedekking Dakpannen
Type dak Schilddak
Isolatievormen Dakisolatie
Dubbel glas
Muurisolatie
Vloerisolatie
Volledig geïsoleerd
Oppervlaktes en inhoud
Perceeloppervlakte 312 m²
Woonoppervlakte 128 m²
Inhoud 500 m³
Oppervlakte overige inpandige ruimten 22 m²
Oppervlakte externe bergruimte 9 m²
Oppervlakte gebouwgebonden buitenruimte 1 m²
Tuinoppervlakte 153 m²
Indeling
Aantal bouwlagen 2
Aantal kamers 4 (waarvan 3 slaapkamers)
Locatie
Ligging In woonwijk
Tuin
Type Achtertuin
Hoofdtuin Ja
Oriëntering Oosten
Heeft een achterom Ja
Staat Goed onderhouden
Tuin 2 - Type Achtertuin
Tuin 2 - Staat Goed onderhouden
Energieverbruik
Energielabel A
Uitrusting
Aantal parkeerplaatsen 2
Verwarmingssysteem Stadsverwarming
Glasvezelaansluiting aanwezig Ja
Tuin aanwezig Ja
Heeft schuur/berging Ja
Heeft ventilatie Ja
Kadastrale gegevens
Kadastrale aanduiding Lelystad O 3671
Perceeloppervlakte 312 m²
Omvang Geheel perceel
Eigendomsituatie Eigen grond
Neem contact met mij op

Plattegronden

Brochure(s) en overige bijlagen

Sluiten

Recent bekeken