Kam & Bronotte Makelaars
Kam & Bronotte Makelaars

Te koop: Galjoen 11 58, 8243 ML Lelystad

€ 745.000,- k.k.

Beschrijving

Kam & Bronotte Makelaars biedt aan: Galjoen 11 58 in Lelystad!

Vrijstaand wonen aan het water met een karakteristieke rieten kap, een royale leefruimte, serre en prachtig uitzicht over het water. Deze unieke woning combineert sfeer, ruimte en licht op een rustige en groene locatie. Dankzij de grote raampartijen, de open leefruimte en de ligging direct aan het water geniet u hier elke dag van een bijzonder woongevoel.

De woning beschikt over een ruime woonkamer, moderne open keuken met kookeiland, een heerlijke serre, twee grote slaapkamers, een complete badkamer en diverse bergruimtes. De woning heeft verder ook een speelse split-level indeling waardoor de leefruimte extra ruimtelijk aanvoelt. De tuin ligt direct aan het water en biedt volop privacy en een prachtig uitzicht.

Bieden vanaf: €745.000 k.k.

Indeling

Begane grond:
Via de entree komt u binnen in de hal met meterkast, toilet en trapopgang. Vanuit hier loopt u door naar de royale leefruimte of de eetkamer.
De moderne open keuken met kookeiland vormt het hart van de woning en is voorzien van diverse inbouwapparatuur. Dankzij de open indeling staat de keuken in directe verbinding met de eetkamer en de woonkamer.
De woonkamer bevindt zich aan de waterzijde en heeft grote raampartijen waardoor er veel natuurlijk licht binnenvalt en u prachtig uitzicht heeft over het water.
Aan de zijkant van de woning bevindt zich een ruime serre van ca. 21,9 m² , een heerlijke plek waar u het hele jaar door kunt genieten van het buitengevoel.

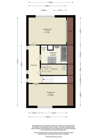
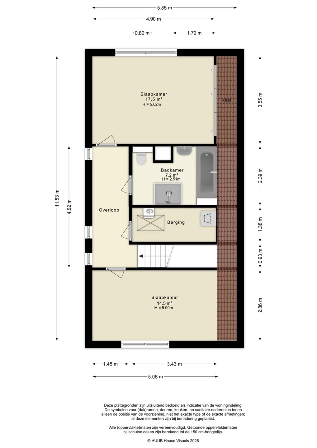
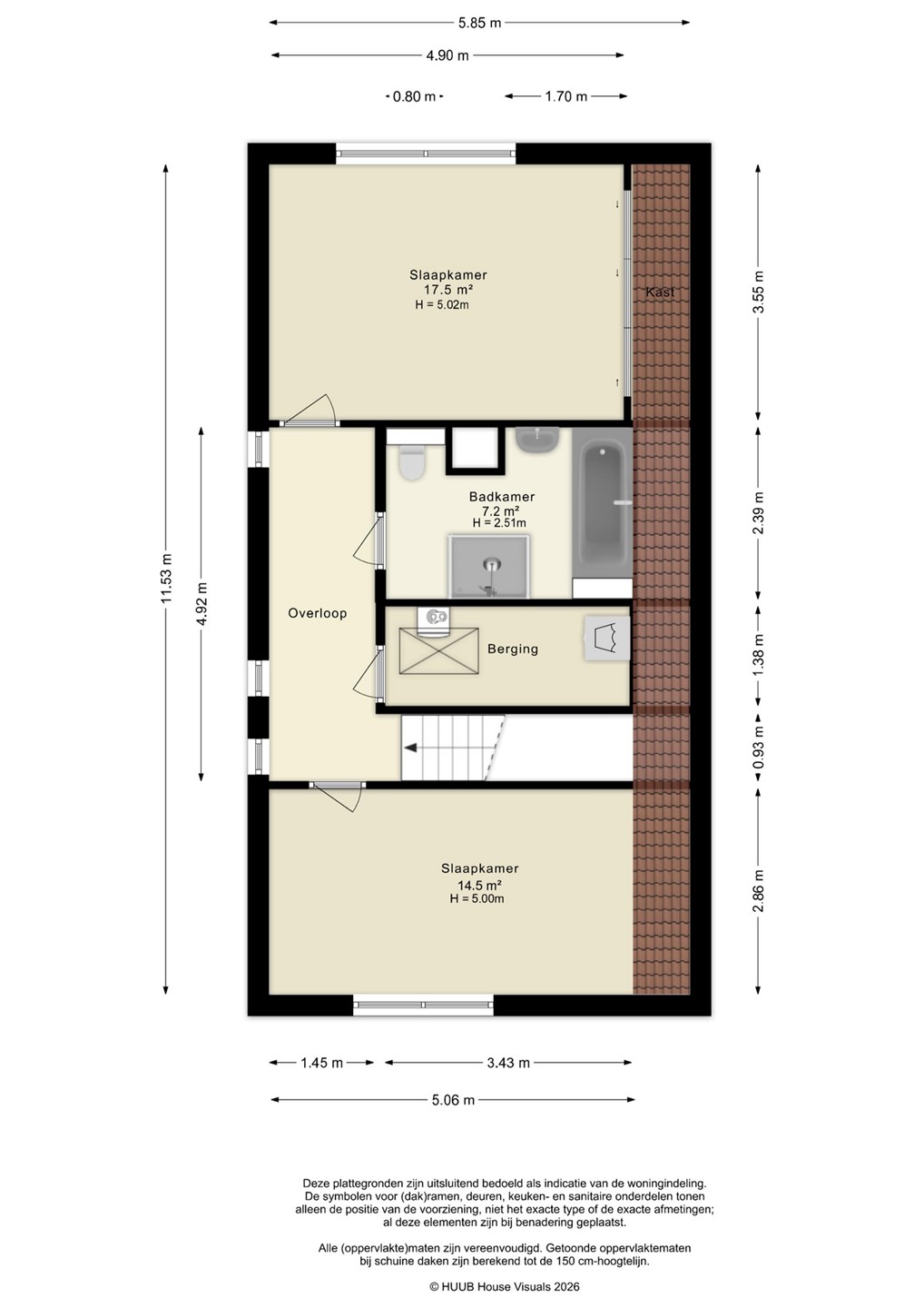
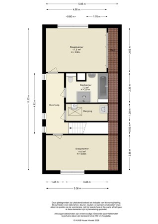
Eerste verdieping:
Op de eerste verdieping bevinden zich twee ruime slaapkamers van ca. 17,5 m² en 14,5 m². Door de hoogte van de slaapkamers(ca 5 meter) voelen deze kamers extra royaal.
De badkamer (ca. 7,2 m²) is compleet uitgevoerd met een ligbad, douche, wastafel en toilet. Daarnaast is er een praktische berging/wasruimte aanwezig.

Vliering:
Via een vlizotrap bereikt u de vliering. Deze ruimte is ideaal te gebruiken als extra bergruimte.

Tuin:
De woning beschikt over een fraai aangelegde tuin aan het water op de zuidwest kant. Hier kunt u in alle rust genieten van het uitzicht en de groene omgeving.
In de tuin vindt u een overkapping en een vrijstaande berging, ideaal voor opslag of het stallen van fietsen. Daarnaast beschikt de woning over 16 zonnepanelen!

Bijzonderheden:
- Vrijstaande woning aan het water
- Gebruiksoppervlakte wonen ca. 137 m²
- Perceeloppervlakte 377 m²
- Serre van ca. 22 m²
- Voorzien van maar liefst 16 zonnepanelen
- Royale woonkamer met veel lichtinval
- Moderne open keuken met kookeiland
- Twee ruime slaapkamers
- Badkamer met douche, ligbad en wastafel
- Praktische berging en vliering
- Overkapping en vrijstaande berging in de tuin
- Gelegen in een rustige en groene woonomgeving
- Zonnige tuin op het zuiden.
- Energielabel A+!

Omgeving:
De woning is gelegen in de geliefde woonwijk Galjoen in Lelystad. Deze wijk staat bekend om haar groene opzet, waterpartijen en rustige woonomgeving.
In de directe omgeving vindt u diverse voorzieningen zoals scholen, winkels, sportfaciliteiten en openbaar vervoer. Ook uitvalswegen richting onder andere Almere en Amsterdam zijn goed bereikbaar.

Bent u op zoek naar een vrijstaande woning aan het water met veel ruimte en een unieke ligging?
Neem dan snel contact op met Kam & Bronotte Makelaars voor een bezichtiging van Galjoen 11 58 in Lelystad.

Kenmerken

Overdracht
Prijs € 745.000,- k.k.
Aanvaarding In overleg
Laatste wijziging Dinsdag 31 maart 2026
Bouw
Type object Waterwoning, villa, woonhuis, vrijstaande woning
Soort bouw Bestaande bouw
Bouwjaar 2007
Dakbedekking Riet
Type dak Samengesteld
Isolatievormen Volledig geïsoleerd
Oppervlaktes en inhoud
Perceeloppervlakte 377 m²
Woonoppervlakte 137 m²
Inhoud 589 m³
Oppervlakte overige inpandige ruimten 7 m²
Oppervlakte externe bergruimte 11 m²
Oppervlakte gebouwgebonden buitenruimte 22 m²
Indeling
Aantal bouwlagen 2
Aantal kamers 3 (waarvan 2 slaapkamers)
Locatie
Ligging Aan rustige weg
Aan water
In woonwijk
Vrij uitzicht
Tuin
Type Zijtuin
Hoofdtuin Ja
Oriëntering Zuiden
Staat Goed onderhouden
Tuin 2 - Type Zijtuin
Tuin 2 - Staat Goed onderhouden
Energieverbruik
Energielabel A+
CV ketel
CV ketel Remeha
Warmtebron Gas
Bouwjaar 2022
Combiketel Ja
Eigendom Eigendom
Uitrusting
Warm water CV-ketel
Verwarmingssysteem Centrale verwarming
Glasvezelaansluiting aanwezig Ja
Tuin aanwezig Ja
Heeft schuur/berging Ja
Heeft zonnecollectoren Ja
Heeft ventilatie Ja
Kadastrale gegevens
Kadastrale aanduiding Lelystad N 2643
Perceeloppervlakte 377 m²
Omvang Geheel perceel
Eigendomsituatie Eigen grond
Neem contact met mij op

Plattegronden

Brochure(s) en overige bijlagen

Sluiten

Recent bekeken