Kam & Bronotte Makelaars
Kam & Bronotte Makelaars

Te koop: Agoraweg 153, 8224 BZ Lelystad

€ 485.000,- k.k.

Beschrijving

NIEUWE KANS! Kam & Bronotte makelaars biedt aan: Agoraweg 153 te Lelystad. Een appartement met 2-3 slaapkamers EN een eigen parkeerplaats in het centrum van Lelystad!

Op de derde verdieping van appartementencomplex Binnenhof, gelegen naast het theater Agora, bieden wij u deze unieke kans! Dit prachtige appartement van circa 92 m² beschikt over een eigen loggia (ca. 4 m²) op het oosten. Vanuit de woonkamer geniet u van een fraai uitzicht op cultureel centrum De Kubus.

Het appartement omvat:
Een woonkamer met open keuken (ca. 40 m²).
Twee ruime slaapkamers (ca. 12,7 m² en 12 m²).
De mogelijkheid om een derde slaapkamer (ca. 8 m²) te creëren.
Een betegelde badkamer met inloopdouche en wastafel.
Een separate toiletruimte met hangend toilet en fonteintje.
Een technische ruimte met opstelplaats voor onder andere de warmtepomp.
De woonkamer, keuken, hal en slaapkamers zijn geheel naar eigen wens in te richten.
Een eigen (!) parkeerplaats onder het complex.

Vanuit de parkeer'kelder' bereikt u via de lift of trap comfortabel en droog uw woning. Daarnaast is er een gezamenlijke fietsenberging beschikbaar.

Duurzaam en energiezuinig wonen:
Dit appartement heeft een energielabel A+++ en is al volledig gasloos. Dankzij de warmtepomp beschikt het over vloerverwarming én -koeling. De ramen zijn voorzien van triple glas, en een gebalanceerd ventilatiesysteem met warmteterugwinning (WTW) zorgt voor een aangenaam binnenklimaat. Ook liggen er zonnepanelen op het dak. 

Uitstekende ligging:
Gelegen in het hart van Lelystad, naast het theater Agora, heeft u alle voorzieningen binnen handbereik. Het CS bus- en treinstation van Lelystad ligt op slechts enkele minuten lopen, met snelle verbindingen naar Amsterdam CS (39 minuten) en Zwolle (30 minuten).

Heeft u behoefte aan ontspanning in een sociale omgeving? De gezamenlijke tuin (het Binnenhof), biedt een sfeervolle plek om te genieten van een boek, koffie of een goed gesprek, beschut tussen de gebouwen en met zowel zon- als schaduwplekken.

"Nu bieden vanaf € 485.000,- k.k. Deze vraagprijs is een 'bieden vanaf prijs'. Biedingen boven € 485.000,- k.k. worden door de verkoper in behandeling genomen."

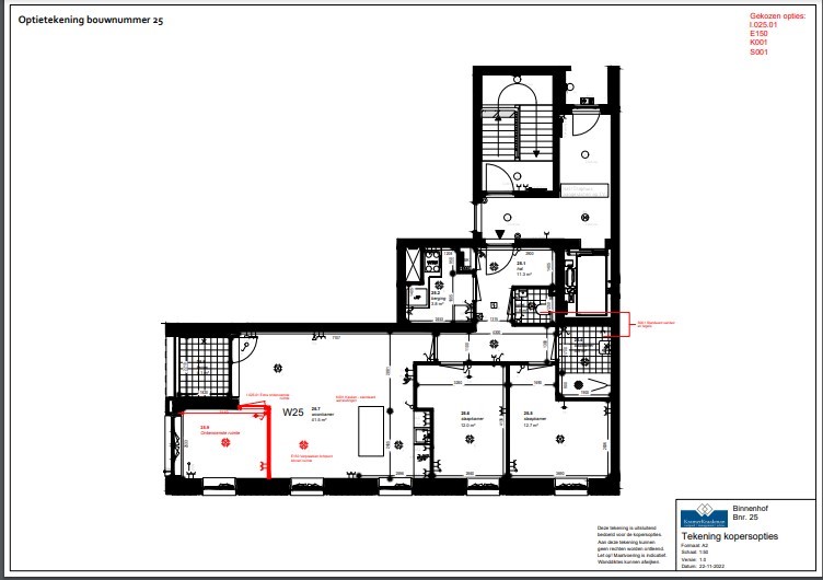
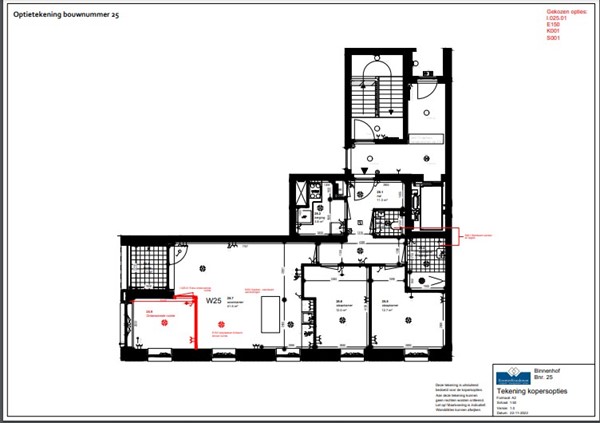
Indeling:
Entree: Ruime hal met meterkast en toegang tot de technische ruimte (voor warmtepomp, vloerverwarming en WTW-installatie).

Slaapkamers: Twee slaapkamers (ca. 12,7 m² en 12 m²), met mogelijkheid tot een derde slaapkamer of hobbykamer (ca. 8 m²).

Sanitair: Badkamer met inloopdouche en wastafelmeubel; separaat toilet met hangend toilet en fonteintje.

Woonkamer: Lichte woonkamer met open keuken en toegang tot de loggia.

Terras/Loggia: Een privé loggia van ca. 4 m² op het oosten, bereikbaar vanuit de woonkamer, met uitzicht op De Kubus.

Bijzonderheden
+ Luxe 2- (of 3)kamer appartement op de derde verdieping.
+ Eigen genummerde parkeerplaats onder het gebouw.
+ Energielabel A+++ .
+ Gasloos en energiezuinig, met warmtepomp en zonnepanelen.
+ Woonoppervlakte: circa 92 m². 
+ Een eigen (!) parkeerplaats onder het complex.

Wilt u bieden? Dit kan via het Eerlijk Bieden-systeem. Neem contact op met ons kantoor voor de link naar het biedingsformulier of klik op de knop Breng een bod uit op onze website.

Pak deze kans en woon comfortabel én duurzaam in het centrum van Lelystad!

Kenmerken

Overdracht
Prijs € 485.000,- k.k.
Servicekosten € 126,57
Aanvaarding In overleg
Laatste wijziging Donderdag 5 juni 2025
Bouw
Type object Tussenverdieping, appartement
Woonlaag 3e woonlaag
Soort bouw Nieuwbouw
Isolatievormen Volledig geïsoleerd
Oppervlaktes en inhoud
Woonoppervlakte 92 m²
Inhoud 273 m³
Oppervlakte gebouwgebonden buitenruimte 4 m²
Indeling
Aantal bouwlagen 1
Aantal kamers 4 (waarvan 3 slaapkamers)
Locatie
Ligging In centrum
Energieverbruik
Energielabel A+++
Uitrusting
Warm water Centrale voorziening
Verwarmingssysteem Vloerverwarming
Warmtepomp
Warmterecuperatiesysteem
Badkamervoorzieningen Douche
Wastafel
Heeft een balkon Ja
Heeft een parkeerplaats Ja
Vereniging van Eigenaren
Ingeschreven bij de KvK Ja
Jaarlijkse vergadering Ja
Periodieke bijdrage Ja
Reservefonds Ja
Onderhoudsverwachting Ja
Opstal verzekering Ja
Kadastrale gegevens
Kadastrale aanduiding Lelystad M 10814
Omvang Appartementsrecht of complex
Eigendomsituatie Eigen grond
Indexnummer 25
Neem contact met mij op

Plattegronden

Brochure(s) en overige bijlagen

Sluiten

Recent bekeken