Kam & Bronotte Makelaars
Kam & Bronotte Makelaars

Te koop: Wijngaard 45, 8212 CC Lelystad

€ 425.000,- k.k.

Beschrijving

Kam & Bronotte Makelaars biedt aan: Wijngaard 45 te Lelystad

In de zeer geliefde woonwijk De Wijngaard staat deze schitterende gele hoekwoning uit 1974, gelegen op maar liefst 226 m² eigen grond. De woning is voorzien van 4 slaapkamers, schitterende keuken, kunststof kozijnen, een garage met elektrische sectionaaldeur, een hoog afwerkingsniveau en diverse energiezuinige voorzieningen. Dankzij de hoekligging beschikt de woning over een zonnige en fraai aangelegde tuin met veel privacy.

Bieden vanaf € 425.000,- k.k.

Indeling
Begane grond
Je komt de woning binnen via de inpandige berging, een praktische entree met veel opbergruimte, de wasmachine- en drogeropstelling en toegang tot het toilet. Het toilet is uitgevoerd met zwevend sanitair en een fonteintje.
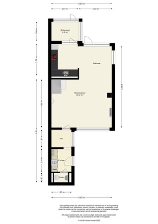
De woonkamer is vergroot doordat de hal bij de woonkamer is getrokken en heeft een royale oppervlakte van circa 45 m². Een heerlijke leefruimte met veel lichtinval, voorzien van een energiezuinige pelletkachel, airconditioning en elektrische zonwering aan zowel de voor- als achterzijde. De vloer is afgewerkt met een combinatie van plavuizen en laminaat.

De moderne keuken (2020) staat in open verbinding met de woonkamer en is compleet uitgerust met:
•    elektrische oven
•    inductiekookplaat
•    koel-vriescombinatie
•    vaatwasser
•    afzuigkap
•    boiler
•    heetwaterkraan

Vanuit de keuken is er toegang tot een achtergelegen berg-/werkruimte, ideaal als hobbyruimte of extra opslag.

Eerste verdieping
Op de eerste verdieping bevinden zich drie slaapkamers, allen voorzien van een laminaatvloer, 3 slaapkamers te weten; 12,6 m², 9,5 m² en 7,4 m².
De badkamer is keurig uitgevoerd en beschikt over een vast wastafelmeubel, douchecabine, raam voor natuurlijke ventilatie en daglicht en een verlaagd plafond met inbouwspots. Daarnaast is er een separate toiletruimte met zwevend sanitair.

Tweede verdieping
Via een vaste trap bereik je de zolderverdieping. Hier bevindt zich een ruime zolderkamer van circa 14,5 m², ingericht als vierde slaapkamer en voorzien van een dakraam en wastafel. Op de voorzolder is extra bergruimte aanwezig. Ook deze verdieping is afgewerkt met laminaat.

Garage en tuin
De garage heeft een oppervlakte van circa 18,1 m² en is voorzien van een elektrische sectionaaldeur.
De zonnige tuin, mogelijk door de hoekligging, is prachtig en keurig aangelegd met een strak gazon, sierbestrating, borders met beplanting en een sfeervolle veranda met lamellendak. Vanuit de veranda is er een doorgang naar de garage, wat het geheel bijzonder praktisch maakt.

Duurzaamheid & comfort
•    energielabel C
•    11 zonnepanelen (2023) met een opbrengst van ca. 1.931 kWh per jaar
•    energiezuinige pelletkachel
•    airconditioning in de woonkamer
•    elektrische zonwering aan voor- en achterzijde
•    kunststof kozijnen

Ligging
De woning ligt in de populaire woonwijk De Wijngaard, op enkele minuten loopafstand van het Gelderse Hout en het Siltebos, waar je kunt genieten van prachtige wandelroutes en veel natuur.

Bijzonderheden
•    hoekwoning
•    bouwjaar 1974
•    226 m² eigen grond
•    woonkamer ca. 45 m²
•    vier slaapkamers
•    garage ca. 18,1 m²
•    zonnige, fraai aangelegde tuin met veranda en lamellendak
•    bieden vanaf € 425.000,- k.k.

Kortom: een compleet, uitstekend onderhouden en bijzonder sfeervol woonhuis op een geliefde locatie in Lelystad.

Kenmerken

Overdracht
Prijs € 425.000,- k.k.
Aanvaarding In overleg
Laatste wijziging Dinsdag 17 maart 2026
Bouw
Type object Eengezinswoning, woonhuis, hoekwoning
Soort bouw Bestaande bouw
Bouwjaar 1974
Dakbedekking Dakpannen
Type dak Zadeldak
Isolatievormen Dubbel glas
Muurisolatie
Vloerisolatie
Oppervlaktes en inhoud
Perceeloppervlakte 226 m²
Woonoppervlakte 129 m²
Inhoud 464 m³
Oppervlakte externe bergruimte 18 m²
Tuinoppervlakte 80 m²
Indeling
Aantal bouwlagen 3
Aantal kamers 5 (waarvan 5 slaapkamers)
Locatie
Ligging In woonwijk
Tuin
Type Achtertuin
Hoofdtuin Ja
Oriëntering Oosten
Heeft een achterom Ja
Staat Goed onderhouden
Tuin 2 - Type Achtertuin
Tuin 2 - Staat Goed onderhouden
Energieverbruik
Energielabel C
CV ketel
CV ketel Remeha avanta
Warmtebron Gas
Bouwjaar 2012
Combiketel Ja
Eigendom Eigendom
Uitrusting
Warm water CV-ketel
Verwarmingssysteem Centrale verwarming
Heeft kabel-tv Ja
Tuin aanwezig Ja
Heeft een dakraam Ja
Heeft zonwering Ja
Heeft zonnecollectoren Ja
Kadastrale gegevens
Kadastrale aanduiding Lelystad K 1729
Perceeloppervlakte 160 m²
Omvang Geheel perceel
Eigendomsituatie Eigen grond
Kadastrale aanduiding Lelystad K 5529
Perceeloppervlakte 66 m²
Omvang Geheel perceel
Eigendomsituatie Eigen grond
Neem contact met mij op

Plattegronden

Brochure(s) en overige bijlagen

Sluiten

Recent bekeken