Kam & Bronotte Makelaars
Kam & Bronotte Makelaars

Te koop: Schouw 54 6, 8232 XK Lelystad

€ 495.000,- k.k.

Beschrijving

In de gewilde en kindvriendelijke woonwijk De Schouw staat deze schitterende twee-onder-een-kapwoning met garage op een perceel van 222 m² eigen grond. De woning beschikt over 148 m² woonoppervlakte, is vrij gelegen aan de voorzijde en biedt parkeergelegenheid op eigen terrein. Een modern en uitstekend onderhouden huis met een ruime woonkamer, luxe keuken, 3 ruime slaapkamers en mogelijkheid tot een extra slaapkamer op zolder. Bouwjaar 2008.

Bieden vanaf € 495.000,- k.k. 

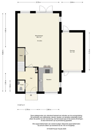
Begane grond:
Entree, hal met meterkast en toiletruimte. Vanuit de hal bereikt u de royale, tuingerichte woonkamer van maar liefst circa 48 m², voorzien van een nette laminaatvloer, een grote opstelplaats voor een royale eettafel en openslaande deuren naar de zonnige achtertuin. Door het extra zijraam geniet de woonkamer van veel natuurlijk lichtinval.
Aan de voorzijde bevindt zich de hoogwaardige Systemat-keuken (de exclusieve lijn van het merk Häcker). De keuken is uitgevoerd met MDF-lakfronten met afgeronde randen, wat een luxe, naadloze uitstraling geeft. Het werkblad is volledig van gepolijst zwart graniet (6 cm dik), ongevoelig voor vlekken van bijvoorbeeld wijn of vruchtensappen, met een onderbouw gemonteerde spoelbak voor een strak en modern geheel.

De keuken is voorzien van hoogwaardige inbouwapparatuur, waaronder:
-Gutmann Campo-afzuigkap met randafzuiging, dimbare ledverlichting en stijlvolle glazen onderplaat, een absolute topklasse uitvoering
-Neff gas-op-glas kookplaat (5 pits) met krachtige wokbrander;
-Pelgrim combi-stoomoven (ca. 4 jaar oud), een 3-in-1 oven, magnetron en stoomoven
-Bosch vaatwasser met besteklade, Zeolith-droogsysteem en fluisterstil gebruik
-Liebherr koelkast met deurdemper
-Quooker met combiboiler en geïntegreerde mengkraan

Eerste verdieping:
Overloop met toegang tot drie ruime slaapkamers van respectievelijk 11,6 m², 18,8 m² en 13,8 m². De luxe badkamer is compleet uitgevoerd met een inloopdouche, ligbad, zwevend toilet, designradiator en wastafelmeubel.

Tweede verdieping:
Grote zolderruimte van circa 25,2 m² met dakraam en opstelling van de cv-ketel (Intergas Combi Compact CW4, 2023). Hier is eenvoudig een vierde slaapkamer te realiseren.

Buiten:
De achtertuin is verzorgd aangelegd met gazon, terras, beplanting en lijnbomen en biedt volop ruimte om van het buitenleven te genieten. De garage (ca. 5,13 x 2,94 m) biedt plaats aan een auto, fietsen en extra bergruimte.

Bijzonderheden:
- Bouwjaar: 2008
- Woonoppervlakte: 148 m²
- Perceeloppervlakte: 222 m² eigen grond
- Vrije ligging aan de voorzijde
- Parkeren op eigen terrein
- Hoogwaardige Systemat-keuken van Häcker met granieten blad en topapparatuur
- Cv-ketel Intergas Combi Compact CW4 (2023)
- Onderhoudsarme kunststof geveldelen
- Oplevering in overleg

Kenmerken

Overdracht
Prijs € 495.000,- k.k.
Aanvaarding In overleg
Laatste wijziging Donderdag 12 februari 2026
Bouw
Type object Eengezinswoning, woonhuis, twee onder een kap woning
Soort bouw Bestaande bouw
Bouwjaar 2008
Dakbedekking Dakpannen
Type dak Zadeldak
Isolatievormen Volledig geïsoleerd
Oppervlaktes en inhoud
Perceeloppervlakte 222 m²
Woonoppervlakte 148 m²
Inhoud 560 m³
Oppervlakte overige inpandige ruimten 15 m²
Oppervlakte gebouwgebonden buitenruimte 1 m²
Tuinoppervlakte 72 m²
Indeling
Aantal bouwlagen 3
Aantal kamers 5 (waarvan 4 slaapkamers)
Locatie
Ligging In woonwijk
Tuin
Type Achtertuin
Hoofdtuin Ja
Oriëntering Noord west
Staat Goed onderhouden
Tuin 2 - Type Achtertuin
Tuin 2 - Staat Goed onderhouden
Energieverbruik
Energielabel A
CV ketel
CV ketel Intergas
Warmtebron Gas
Bouwjaar 2023
Combiketel Ja
Eigendom Eigendom
Uitrusting
Aantal parkeerplaatsen 1
Warm water CV-ketel
Verwarmingssysteem Centrale verwarming
Heeft kabel-tv Ja
Tuin aanwezig Ja
Heeft ventilatie Ja
Kadastrale gegevens
Kadastrale aanduiding Lelystad M 8554
Perceeloppervlakte 222 m²
Omvang Geheel perceel
Eigendomsituatie Eigen grond
Neem contact met mij op
Sluiten

Recent bekeken