Kam & Bronotte Makelaars
Kam & Bronotte Makelaars
Nieuw in verkoop

Te koop: Rozengaard 18 8, 8212 DP Lelystad

€ 375.000,- k.k.

Beschrijving

Kam & Bronotte Makelaars biedt aan Rozengaard 18-08 te Lelystad

Aan de rand van de groene en geliefde woonwijk Rozengaard, op slechts enkele passen van het uitgestrekte Wold bos en het Gelderse Hout, staat deze verrassend ruime en zorgvuldig onderhouden eengezinswoning. Een plek waar comfort, sfeer en praktische leefruimte perfect samenkomen. De woning is deels voorzien van kunststof kozijnen en beschikt over een zonnige achtertuin op het zuiden, een gezellige tuingerichte woonkamer met houtkachel (maar liefst circa 34,4 m²) en een moderne keuken, badkamer en toiletruimte (allen vernieuwd in 2016). Met vier volwaardige slaapkamers, waaronder een royale zolderkamer met dakkapel, is dit een ideale woning voor wie net even wat meer ruimte zoekt. Energielabel B. Perceeloppervlakte 162 m² eigen grond.

Vanuit de achtertuin wandelt u in minder dan een minuut het bos in: een heerlijke omgeving voor natuurliefhebbers, sportievelingen en gezinnen. Met scholen, buurtwinkelcentrum Voorhof en uitvalswegen op korte afstand biedt deze locatie een perfecte balans tussen rust en voorzieningen.

Nu bieden vanaf € 375.000,- k.k.

Indeling
De entree geeft toegang tot de hal met meterkast en een modern afgewerkte toiletruimte (2016) met vrij hangend toilet en fonteintje. De tuingerichte woonkamer (34,4 m²) voelt warm en uitnodigend aan dankzij de houten vloerdelen en sfeervolle houtkachel. Aan de voorzijde bevindt zich de lichte, fraai uitgevoerde keuken (2016), uitgerust met onder meer een rvs-afzuigkap, gaskookplaat, combimagnetron, koelkast, vaatwasser en een Grohe kokend waterkraan. Er is een ruime opstelplaats voor een grote eettafel.

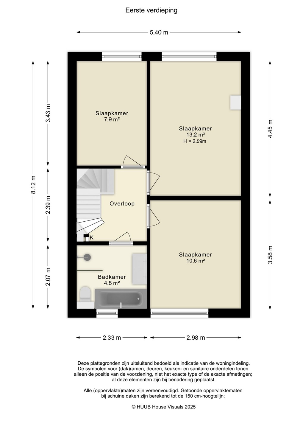
Eerste verdieping
De overloop leidt naar drie comfortabele slaapkamers van respectievelijk circa 7,9 m², 10,6 m² en 13,2 m². Alle kamers zijn voorzien van een laminaatvloer en beschikken over een prettige lichtinval. De badkamer (2016) meet circa 4,8 m² en is modern vormgegeven met een ruime inloopdouche, ligbad, breed wastafelmeubel met twee kranen, tweede vrij hangend toilet en vloerverwarming. Een raam zorgt voor daglicht en natuurlijke ventilatie.

Tweede verdieping
Via de vaste trap bereikt u de zolderverdieping. Hier bevinden zich de aansluitingen voor wasmachine en wasdroger, de cv-opstelling en een royale vierde slaapkamer van circa 10,9 m², uitgevoerd met een kunststof dakkapel. Daarnaast is er extra bergruimte aanwezig.

Tuin
De achtertuin is onderhoudsarm aangelegd en door de ligging op het zuiden geniet u hier van optimale bezonning. Vanuit de tuin bereikt u de vrijstaande stenen berging van circa 5,9 m² en de achterom richting de groenstrook en het bos.
Aan de voorzijde bevindt zich tevens een houten berging van circa 4,7 m², ideaal voor fietsen, opslag of tuingereedschap.

Bijzonderheden
– Groene en kindvriendelijke woonlocatie, direct aan de bosrand.
– Nabij buurtwinkelcentrum, scholen en uitvalswegen.
– Deels voorzien van kunststof kozijnen (2019) met HR++ beglazing.
– Dak geïsoleerd.
– Sfeervolle houtkachel in de woonkamer.
– Moderne keuken, badkamer en toilet (2016).
– Vier volwaardige slaapkamers, inclusief ruime zolderkamer met dakkapel.
– Stenen berging achter (ca. 5,9 m²) en houten berging voor (ca. 4,7 m²).
– Energielabel B.
– Bouwjaar 1978.
– Perceeloppervlakte: 162 m² eigen grond.
– Oplevering in overleg.

Kenmerken

Overdracht
Prijs € 375.000,- k.k.
Status Nieuw in verkoop
Aanvaarding In overleg
Bouw
Type object Eengezinswoning, woonhuis, tussenwoning
Soort bouw Bestaande bouw
Bouwjaar 1978
Dakbedekking Dakpannen
Type dak Zadeldak
Isolatievormen Dakisolatie
Dubbel glas
Oppervlaktes en inhoud
Perceeloppervlakte 162 m²
Woonoppervlakte 107 m²
Inhoud 381 m³
Oppervlakte externe bergruimte 11 m²
Tuinoppervlakte 65 m²
Indeling
Aantal bouwlagen 3
Aantal kamers 5 (waarvan 4 slaapkamers)
Locatie
Ligging In woonwijk
Tuin
Type Achtertuin
Hoofdtuin Ja
Oriëntering Zuiden
Heeft een achterom Ja
Staat Goed onderhouden
Tuin 2 - Type Achtertuin
Tuin 2 - Staat Goed onderhouden
Energieverbruik
Energielabel B
CV ketel
CV ketel Nefit Pro line CW 3
Warmtebron Gas
Bouwjaar 2013
Combiketel Ja
Eigendom Eigendom
Uitrusting
Warm water CV-ketel
Verwarmingssysteem Centrale verwarming
Heeft kabel-tv Ja
Heeft een rookkanaal Ja
Glasvezelaansluiting aanwezig Ja
Tuin aanwezig Ja
Heeft schuur/berging Ja
Heeft een dakraam Ja
Heeft ventilatie Ja
Kadastrale gegevens
Kadastrale aanduiding Lelystad K 5339
Perceeloppervlakte 8 m²
Omvang Geheel perceel
Eigendomsituatie Eigen grond
Kadastrale aanduiding Lelystad K 4137
Perceeloppervlakte 154 m²
Omvang Geheel perceel
Eigendomsituatie Eigen grond
Neem contact met mij op

Plattegronden

Brochure(s) en overige bijlagen

Sluiten

Recent bekeken