Kam & Bronotte Makelaars
Kam & Bronotte Makelaars

Verkocht: Gezinswoning Bouwnummer 8, 8314 Bant

€ 349.500,- v.o.n.
Onderdeel van nieuwbouwproject Bantse Bloei
+1 Vogelvlucht Bant-1-2

Beschrijving

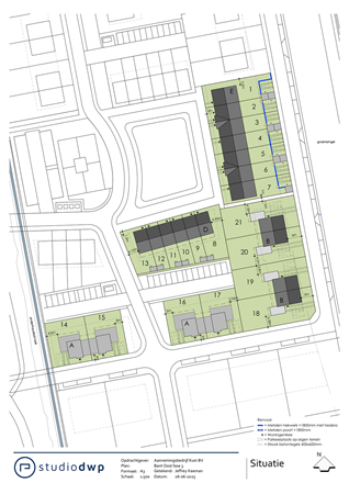
Project De Bantse Bloei is een prachtig nieuwbouwproject met in totaal 21 woningen. Inmiddels zijn er nog enkele levensloopwoningen en 2^1kap woningen beschikbaar.

* levensloopwoningen vanaf € 349.500,00 v.o.n
* twee-onder-een-kapwoningen. vanaf € 429.000,00 v.o.n
De rijwoningen zijn inmiddels allemaal verkocht

Het project combineert modern wooncomfort met een sfeervolle en toekomstbestendige leefomgeving, ideaal voor gezinnen, starters en wie graag voorbereid wil zijn op de toekomst.
voor meer informatie: bantsebloei.nl

Kenmerken

Overdracht
Koopsom € 349.500,- v.o.n.
Status Verkocht
Aanvaarding Per donderdag 6 november 2025
Laatste wijziging Vrijdag 28 november 2025
Bouw
Type object Eengezinswoning, woonhuis
Soort bouw Nieuwbouw
Bouwjaar 2026
Type dak Zadeldak
Isolatievormen Volledig geïsoleerd
Oppervlaktes en inhoud
Perceeloppervlakte 227 m²
Woonoppervlakte 116 m²
Inhoud 449 m³
Oppervlakte externe bergruimte 5 m²
Locatie
Ligging In woonwijk
Tuin
Hoofdtuin Ja
Energieverbruik
Energielabel A+++
Uitrusting
Verwarmingssysteem Vloerverwarming (gedeeltelijk)
Badkamervoorzieningen Douche
Toilet
Wastafel
Heeft schuur/berging Ja
Heeft zonnecollectoren Ja
Heeft ventilatie Ja
Kadastrale gegevens
Kadastrale aanduiding Noordoostpolder
Perceeloppervlakte 227 m²
Neem contact met mij op

Brochure(s) en overige bijlagen

Sluiten

Recent bekeken