Beschrijving

Vrijstaand en levensloopbestendig wonen direct aan vaarwater? Dat kan in Zeewolde!
* Uitstekend bereikbaar: 30 autominuten Amersfoort, 40 autominuten Utrecht, 44 autominuten Amsterdam

- ENGLISH TEXT BELOW -

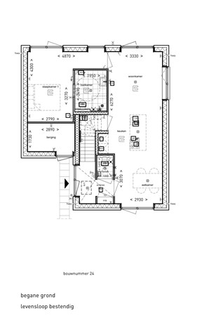
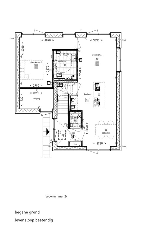
Bouwnummer 24 is een vrijstaande woning (type Valk) o.a. voorzien van slaapkamer en badkamer op de begane grond in het project Waterrijck in Zeewolde. Hier komen comfort, natuur en flexibiliteit samen op een unieke plek, vlakbij Harderwijk en de Veluwe. 

Omschrijving:

Levensloopbestendig: slaapkamer en badkamer op de begane grond
Ruim en licht: royale tuingerichte woonkamer met grote raampartijen, optioneel uit te breiden met 1,8 of 3 meter
Zicht op water en groen: grote ramen halen het buiten naar binnen
Duurzaam: energielabel A+, vloerverwarming en zonnepanelen
Nestkasten in de gevels en screens tegen oververhitting
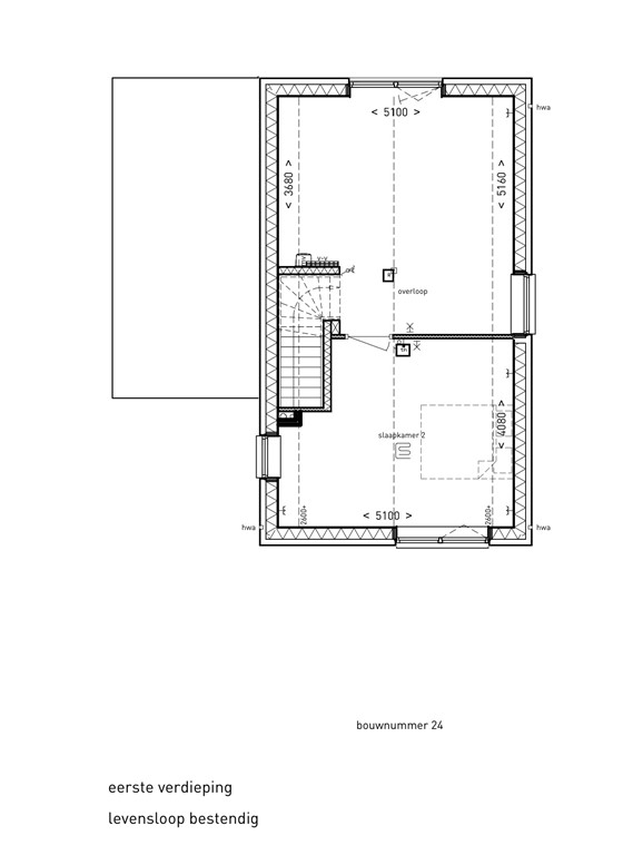
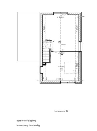
Flexibele indeling: mogelijkheid tot extra slaapkamer en 2de badkamer op de verdieping
Optioneel balkon op de verdieping voor extra buitenruimte
Vergrote berging mogelijk bij verplaatsing van de badkamer naar boven

Liever de woonkamer vergroten, de slaapkamer te voorzien van een dakraam voor voldoende daglicht. Of juist een extra grote woonkeuken beneden en op de 1e verdieping 2 slaapkamers met badkamer/ Het kan allemaal; er is zoveel mogelijk!

Deze woning is ontworpen voor nu én later. Of je nu gelijkvloers wilt wonen of juist extra ruimte zoekt voor logees, werk of hobby – woningtype Valk biedt alle vrijheid om jouw ideale woonstijl te realiseren.

Locatie en omgeving:

* Direct aan het water, met wandelpaden en groen rondom
* Via de sluis vaar je met de boot vanuit je achtertuin zo het Wolderwijd op
* Nabij Harderwijk en de Veluwe: natuur, recreatie en cultuur binnen handbereik
* Watersportmogelijkheden in de buurt: zeilen, suppen, varen
* Winkels, scholen en voorzieningen in Zeewolde op korte afstand
* Uitstekend bereikbaar: 30 autominuten Amersfoort, 40 autominuten Utrecht, 44 autominuten Amsterdam


Nieuwbouwvoordelen:

+ Gasloos, energiezuinig en onderhoudsarm
+ SWK-garantiecertificaat
+ Volledig naar eigen wens uit te breiden via het koperskeuzelijst
+ Hoog wooncomfort en lage energielasten


Bouwnummer 24, woningtype Valk is dé kans om vrijstaand, duurzaam en levensloopbestendig te wonen in een groene, waterrijke omgeving. Neem contact met ons op of bezoek www.woneninwaterrijck.nl voor meer informatie.

Levensloopwoningen – nog 2 beschikbaar
Vrijstaande levensloopwoningen – nog 1 beschikbaar
Twee-onder-één-kap woningen – nog 5 beschikbaar
Vrijstaande gezinswoningen – nog 4 beschikbaar
Starterswoningen – verkocht
Rijwoningen – verkocht

ENGLISH TEXT

Detached and lifetime-friendly living directly on the water? It’s possible in Zeewolde!
Excellent accessibility: 30-minute drive to Amersfoort, 40 minutes to Utrecht, 44 minutes to Amsterdam

Bouwnummer 24 is a detached home (type Valk) featuring, among other things, a bedroom and bathroom on the ground floor, located in the Waterrijck development in Zeewolde. Here, comfort, nature and flexibility come together in a unique setting, close to Harderwijk and the Veluwe.

Description:
Lifetime-friendly: bedroom and bathroom on the ground floor
Spacious and bright: generous garden-facing living room with large windows, optionally expandable by 1.8 or 3 meters
Stunning views of water and greenery: large windows bring the outdoors in
Sustainable: energy label A+, underfloor heating and solar panels
Integrated nesting boxes and exterior screens to prevent overheating
Flexible layout: option to add an extra bedroom and second bathroom on the first floor
Optional balcony on the first floor for additional outdoor space
Enlarged storage room possible by relocating the bathroom upstairs

Prefer a larger living room, a roof window in the bedroom to bring in more natural light, or a spacious kitchen on the ground floor combined with two bedrooms and a bathroom upstairs? It’s all possible — there are so many options!

This home is designed for both today and the future. Whether you want to live fully on one level or need extra space for guests, work or hobbies — the Valk home type offers complete freedom to create your ideal living style.

Location & surroundings:
Directly by the water, surrounded by walking paths and greenery
From your backyard, sail straight through the lock onto the Wolderwijd lake
Close to Harderwijk and the Veluwe — nature, recreation and culture within easy reach
Watersports nearby: sailing, paddleboarding, boating
Shops, schools and amenities in Zeewolde just minutes away
Excellent accessibility: 30-minute drive to Amersfoort, 40 minutes to Utrecht, 44 minutes to Amsterdam

New-build benefits:
Gas-free, energy-efficient and low-maintenance
SWK warranty certificate
Fully customisable via buyer option list
High living comfort and low energy costs

Bouwnummer 24 (type Valk) is your opportunity to live detached, sustainably and future-proof in a green, water-rich environment. Contact us or visit www.woneninwaterrijck.nl for more information.

Kenmerken