Beschrijving

Op een prettige en rustige locatie staat deze verzorgde hoekwoning, gebouwd in 2006, met een hoogwaardige afwerking, vier volwaardige slaapkamers en een zonnige tuin op het westen. De woning is volledig gasloos, voorzien van 14 zonnepanelen (2021) en biedt verrassend veel leefruimte.

Bieden vanaf € 425.000,- k.k.

Indeling
Begane grond
Via de entree bereik je de hal met meterkast en een modern afgewerkte toiletruimte, voorzien van een zwevend toilet, fonteintje en nette betegeling. Vanuit de hal geeft een stijlvolle deur met glaswerk toegang tot de woonkamer.

De ruime woonkamer van circa 45 m² valt direct op door de vele glaspartijen en de prettige lichtinval. De ruimte is afgewerkt met een luxe PVC visgraatvloer en beschikt over een sfeervolle houtkachel (ter overname). Onder de trap bevindt zich een praktische trapkast. Dankzij de afmetingen is er volop ruimte voor een royale zithoek en een grote eettafel.

De keuken is compleet uitgevoerd en voorzien van een koel-vriescombinatie, vaatwasser, oven, inductiekookplaat, afzuigkap en een heetwaterkraan.

De trap naar de eerste verdieping is afgesloten met een stalen schuifdeur, wat bijdraagt aan de moderne uitstraling.

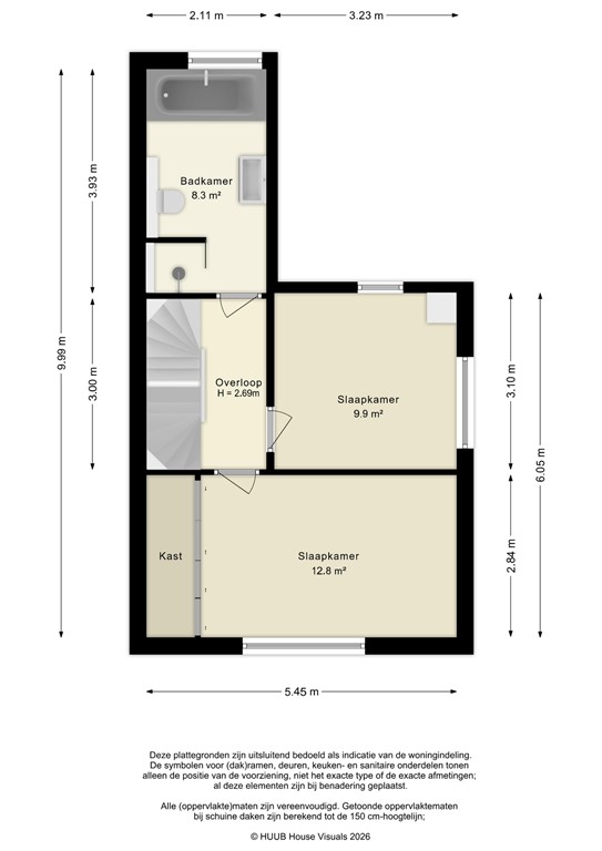
Eerste verdieping
Op deze verdieping bevinden zich twee ruime slaapkamers van circa 12,8 m² en 9,9 m². De slaapkamer aan de voorzijde beschikt over extra bergruimte tot aan de grond.

De badkamer van circa 8,3 m² is modern uitgevoerd en voorzien van een ligbad, douchehoek, wastafelmeubel, zwevend toilet, designradiator en een infraroodspiegel.

Tweede verdieping
Via een vaste trap bereik je de tweede verdieping met overloop, wasmachineopstelling en installatieruimte. Hier bevinden zich nog twee volwaardige slaapkamers van circa 9,9 m² en 9,5 m², waarvan één met een inloopkast. Deze verdieping is afgewerkt met een PVC vloer.
Op zolder bevindt zich tevens een thermische boiler voor warm water.

Installaties & duurzaamheid
- Volledig gasloos
- Elektrische cv-ketel: D-Fro DBF Optima 12 kW (2021)
- 14 zonnepanelen (2021)
- Opbrengst afgelopen jaar circa 2.190 kWh
- Mogelijkheid tot herstel naar gas aanwezig

Buitenruimte
De tuin is gelegen op het westen en verzorgd aangelegd met gazon en tuintegels. Onder de aluminium overkapping van circa 16,8 m², voorzien van LED-spotjes, is het heerlijk beschut buiten zitten.
Achter in de tuin staat een vrijstaande houten berging van circa 7,4 m², ideaal voor fietsen en opslag.

Bijzonderheden
- Hoekwoning
- Bouwjaar 2006
- Royale woonkamer van circa 45 m²
- Luxe PVC visgraatvloer
- Houtkachel ter overname
- Vier volwaardige slaapkamers
- Volledig gasloos
- 14 zonnepanelen (2021)
- Tuin op het westen met aluminium overkapping voorzien van LED-spotjes
- Vrijstaande houten berging
- Oplevering in overleg

Kenmerken