Beschrijving

Kam & Bronotte Makelaars biedt aan: Schouw 49-11 te Lelystad!

Wonen aan het water in een geschakelde twee-onder-één-kapwoning mét carport? Dat kan aan de Schouw 49-11! Deze ruime woning staat op een perceel van 267 m² eigen grond, heeft een gebruiksoppervlakte van ca. 134 m² en beschikt over drie volwaardige woonlagen. Met een zonnige tuin op het westen, veel bergruimte en een rustige, groene ligging is dit een ideale woning die je geheel naar eigen smaak kunt moderniseren.

Bieden vanaf € 425.000,- k.k. De gestelde vraagprijs betreft een bieden vanaf prijs.

Indeling

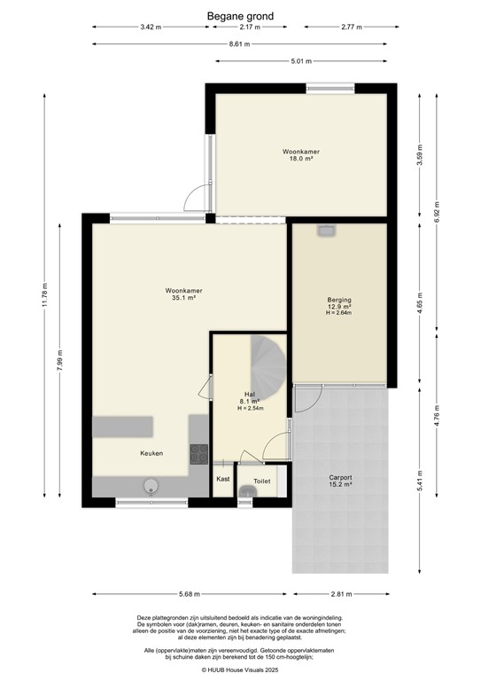
Begane grond:
Via de overdekte carport en eigen oprit kom je bij de entree van de woning. In de hal vind je het toilet, de meterkast, een trapkast en de trapopgang naar boven. De woonkamer is verrassend ruim en biedt volop mogelijkheden om dit helemaal naar eigen hand te zetten. De houten vloer geeft het geheel een warme uitstraling, terwijl je vanuit de zithoek een fraai uitzicht hebt op de achtertuin en het water. Aan de voorzijde van de woning ligt de halfopen keuken, die is uitgevoerd in een hoekopstelling en voorzien van diverse inbouwapparatuur zoals een oven, kookplaat, magnetron en vaatwasser. De keuken biedt voldoende ruimte voor een eethoek en grenst direct aan de gezellige woonkamer. Vanuit de carport is de berging toegankelijk, ideaal als bijkeuken of extra opbergruimte.

Eerste verdieping:
De overloop geeft toegang tot fraaie slaapkamers. Alle kamers zijn voorzien van een nette laminaatvloer. Een van de slaapkamers beschikt bovendien over een vaste kastenwand, waardoor je veel bergruimte hebt. De badkamer is compleet ingericht met een aparte douche, een dubbele wastafel en een tweede toilet.

Tweede verdieping:
De zolderverdieping is een volwaardige extra woonlaag. Dankzij het velux dakraam is hier een lichte en ruime kamer ontstaan die uitstekend dienst kan doen als vierde slaapkamer, werkkamer of hobbyruimte. Onder de schuine kanten zijn praktische bergruimtes gerealiseerd.

Tuin:
De achtertuin is een echte eyecatcher van deze woning: zonnig gelegen op het westen en direct grenzend aan het water. Hier geniet je van lange zomeravonden, het uitzicht over het groen en de rust van de omgeving. De tuin is voorzien van een terras, beplanting en een vrijstaande houten berging.

Bijzonderheden
•	Geschakelde twee-onder-één-kapwoning
•	Bouwjaar 1977
•	Woonoppervlak ca. 134 m²
•	Perceeloppervlak 267 m²
•	Energielabel C 
•	Wonen direct aan het water (gemeentelijke beschoeiing)
•	Carport (dak vernieuwd in 2025)
•	Recent onderhoud: rabatdelen achtergevel vervangen (2025), schilderwerk buiten (2025)
•	Rustige en kindvriendelijke ligging in de Schouw, nabij scholen, winkels en uitvalswegen

Een unieke kans om te wonen aan het water in een ruime woning met carport en volop mogelijkheden! Plan snel jouw bezichtiging!

Kenmerken