Kam & Bronotte Makelaars
Kam & Bronotte Makelaars

Te koop: Schouw 49 11, 8232 XA Lelystad

€ 425.000,- k.k.

Beschrijving

Kam & Bronotte Makelaars biedt aan: Schouw 49-11 te Lelystad!

Wonen aan het water in een geschakelde twee-onder-één-kapwoning mét carport? Dat kan aan de Schouw 49-11! Deze ruime woning staat op een perceel van 267 m² eigen grond, heeft een gebruiksoppervlakte van ca. 134 m² en beschikt over drie volwaardige woonlagen. Met een zonnige tuin op het westen, veel bergruimte en een rustige, groene ligging is dit een ideale woning die je geheel naar eigen smaak kunt moderniseren.

Bieden vanaf € 425.000,- k.k. De gestelde vraagprijs betreft een bieden vanaf prijs.

Indeling

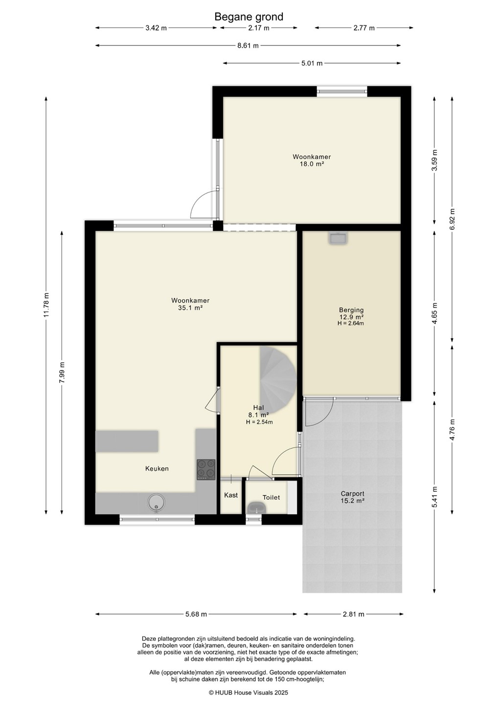
Begane grond:
Via de overdekte carport en eigen oprit kom je bij de entree van de woning. In de hal vind je het toilet, de meterkast, een trapkast en de trapopgang naar boven. De woonkamer is verrassend ruim en biedt volop mogelijkheden om dit helemaal naar eigen hand te zetten. De houten vloer geeft het geheel een warme uitstraling, terwijl je vanuit de zithoek een fraai uitzicht hebt op de achtertuin en het water. Aan de voorzijde van de woning ligt de halfopen keuken, die is uitgevoerd in een hoekopstelling en voorzien van diverse inbouwapparatuur zoals een oven, kookplaat, magnetron en vaatwasser. De keuken biedt voldoende ruimte voor een eethoek en grenst direct aan de gezellige woonkamer. Vanuit de carport is de berging toegankelijk, ideaal als bijkeuken of extra opbergruimte.

Eerste verdieping:
De overloop geeft toegang tot fraaie slaapkamers. Alle kamers zijn voorzien van een nette laminaatvloer. Een van de slaapkamers beschikt bovendien over een vaste kastenwand, waardoor je veel bergruimte hebt. De badkamer is compleet ingericht met een aparte douche, een dubbele wastafel en een tweede toilet.

Tweede verdieping:
De zolderverdieping is een volwaardige extra woonlaag. Dankzij het velux dakraam is hier een lichte en ruime kamer ontstaan die uitstekend dienst kan doen als vierde slaapkamer, werkkamer of hobbyruimte. Onder de schuine kanten zijn praktische bergruimtes gerealiseerd.

Tuin:
De achtertuin is een echte eyecatcher van deze woning: zonnig gelegen op het westen en direct grenzend aan het water. Hier geniet je van lange zomeravonden, het uitzicht over het groen en de rust van de omgeving. De tuin is voorzien van een terras, beplanting en een vrijstaande houten berging.

Bijzonderheden
• Geschakelde twee-onder-één-kapwoning
• Bouwjaar 1977
• Woonoppervlak ca. 134 m²
• Perceeloppervlak 267 m²
• Energielabel C
• Wonen direct aan het water (gemeentelijke beschoeiing)
• Carport (dak vernieuwd in 2025)
• Recent onderhoud: rabatdelen achtergevel vervangen (2025), schilderwerk buiten (2025)
• Rustige en kindvriendelijke ligging in de Schouw, nabij scholen, winkels en uitvalswegen

Een unieke kans om te wonen aan het water in een ruime woning met carport en volop mogelijkheden! Plan snel jouw bezichtiging!

Kenmerken

Overdracht
Prijs € 425.000,- k.k.
Aanvaarding In overleg
Laatste wijziging Dinsdag 4 november 2025
Bouw
Type object Eengezinswoning, woonhuis, geschakelde twee onder een kap woning
Soort bouw Bestaande bouw
Bouwjaar 1977
Dakbedekking Dakpannen
Type dak Zadeldak
Isolatievormen Dubbel glas
Oppervlaktes en inhoud
Perceeloppervlakte 267 m²
Woonoppervlakte 134 m²
Inhoud 489 m³
Oppervlakte overige inpandige ruimten 13 m²
Oppervlakte externe bergruimte 4 m²
Oppervlakte gebouwgebonden buitenruimte 15 m²
Indeling
Aantal bouwlagen 3
Aantal kamers 5 (waarvan 3 slaapkamers)
Locatie
Ligging In woonwijk
Tuin
Type Achtertuin
Hoofdtuin Ja
Oriëntering West
Staat Normaal
Tuin 2 - Type Achtertuin
Tuin 2 - Staat Normaal
Energieverbruik
Energielabel C
CV ketel
CV ketel Intergas HRE36/30A
Warmtebron Gas
Bouwjaar 2021
Combiketel Ja
Eigendom Huur
Uitrusting
Aantal parkeerplaatsen 1
Warm water CV-ketel
Verwarmingssysteem Centrale verwarming
Glasvezelaansluiting aanwezig Ja
Tuin aanwezig Ja
Heeft schuur/berging Ja
Heeft zonwering Ja
Heeft ventilatie Ja
Kadastrale gegevens
Kadastrale aanduiding Lelystad M 831
Perceeloppervlakte 267 m²
Omvang Geheel perceel
Eigendomsituatie Eigen grond
Neem contact met mij op

Plattegronden

Brochure(s) en overige bijlagen

Sluiten

Recent bekeken