Beschrijving

Kam & Bronotte Makelaars biedt aan: Rijnland 416 te Lelystad!

Op zoek naar een ruime, goed onderhouden en energiezuinige tussenwoning met een moderne uitstraling én een fijne tuin op het westen? Dan is deze woning aan de Rijnland 416 precies wat je zoekt! Met een woonoppervlakte van circa 97 m², een royale woonkamer, twee ruime slaapkamers en een verzorgde tuin met overkapping en berging, is dit een ideale woning voor starters, doorstromers of een jong gezin.

Bieden vanaf prijs: €375.000 k.k.

Indeling

Begane grond:
Je komt meteen binnen in de ruime eetkamer. Vanuit hier bereik je de hal met meterkast en toilet. Hierna volgt de ruime en lichte woonkamer aan de achterzijde van de woning. Dankzij de grote raampartijen en deur naar de tuin is er veel lichtinval en een prettig ruimtelijk gevoel.
Aan de voorzijde bevindt zich de open keuken, voorzien van diverse inbouwapparatuur. Daarnaast is er een praktische voorraadkast onder de trap.

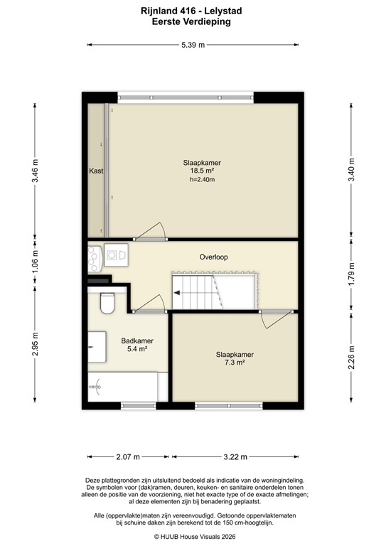
Eerste verdieping:
Overloop met toegang tot twee slaapkamers. De royale hoofdslaapkamer (ca.18.5 m²) beslaat de volledige breedte van de woning en beschikt over een vaste kast. De tweede slaapkamer (ca. 7.3 m²) is ideaal als kinder-, werk- of logeerkamer.
De badkamer is voorzien van een douche, wastafel en toilet.

Tuin:
De achtertuin (gelegen op het westen) is verzorgd aangelegd en voorzien van een ruime overkapping waar je heerlijk kunt zitten, ongeacht het weer. Achterin de tuin bevindt zich de vrijstaande berging en er is een achterom aanwezig.

Bijzonderheden:
 
- Bouwjaar 2001 
- Woonoppervlakte ca. 97 m² 
- Energielabel A
- Verwarming en warm water via stadsverwarming (gasloos) 
- Ruime woonkamer van ca. 45 m² 
- 2 slaapkamers (mogelijkheid tot meer) 
- Moderne open keuken 
- Zonnige achtertuin op het westen met overkapping 
- Vrijstaande berging van ca. 6 m² 
- Glasvezel aanwezig
- Gelegen in een rustige en kindvriendelijke woonwijk 

Omgeving:
De woning is gelegen in een rustige, groene en kindvriendelijke wijk in Lelystad. In de directe omgeving vind je scholen, winkels, speelvoorzieningen en openbaar vervoer. Ook uitvalswegen zijn snel bereikbaar.
Ben jij op zoek naar een instapklare woning met ruimte, comfort en een fijne tuin? Neem dan snel contact op met Kam & Bronotte Makelaars voor een bezichtiging. We laten je deze woning graag zien!

Kenmerken