Beschrijving

Kam & Bronotte Makelaars biedt aan: Rijnland 135 te Lelystad. 

In de geliefde en groene Landstrekenwijk staat deze ruime, modern afgewerkte en instapklare tussenwoning met een woonoppervlakte van circa 162 m², een uitbouw aan de achterzijde, vier volwaardige slaapkamers, een aparte wasruimte en een fraai aangelegde tuin op het zuiden. Dankzij de rechte bouw is er op beide verdiepingen geen schuin ruimteverlies, waardoor alle kamers optimaal bruikbaar zijn. Met energielabel A+, stadsverwarming, een vernieuwde HR++ schuifpui (2021) en negen zonnepanelen uit 2012 met een opbrengst van 2155 kWh in 2024 is de woning bovendien energiezuinig en toekomstbestendig. De combinatie van ruimte, afwerkingsniveau en locatie maakt dit een bijzonder aantrekkelijke gezinswoning. 

Bieden vanaf € 425.000,- k.k. 
De gestelde prijs betreft een "bieden vanaf"-prijs. 

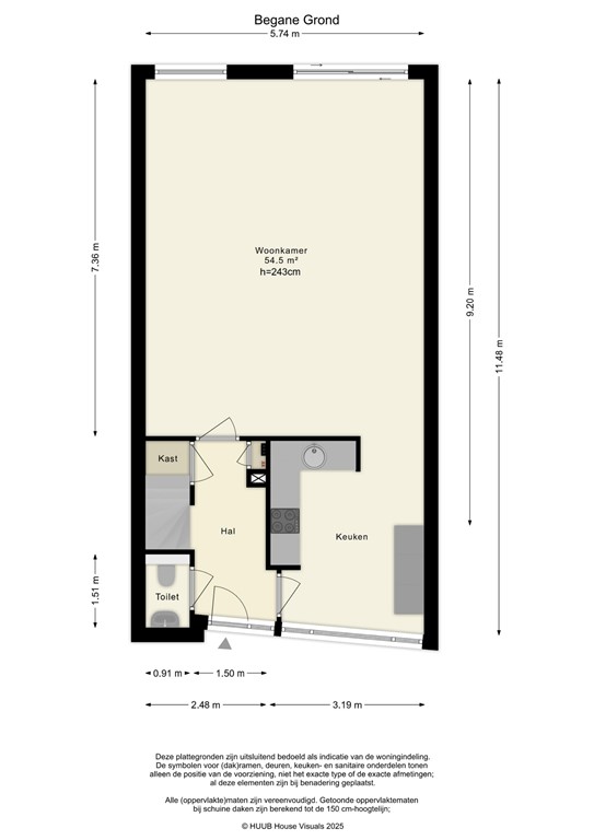
Begane grond: 
U betreedt de woning via een verzorgde entree, met een garderobe, trapkast voor extra bergruimte en een toiletruimte die in 2019 gemoderniseerd is. Aan de voorzijde bevindt zich de strakke open keuken (geplaatst in 2015). Deze is uitgevoerd in modern hoogglans grijs met een fris wit werkblad en uitgerust met inbouwapparatuur, waaronder een inductiekookplaat, afzuigkap, koelkast, vriezer, combimagnetron en vaatwasser. De keuken staat in directe verbinding met de royale, uitgebouwde woonkamer, waardoor er een ruime open leefruimte ontstaat. De royale en lichte leefruimte heeft een oppervlakte van circa 54,5 m². U geniet hier van een heerlijk comfort dankzij de vloerverwarming en de afwerking met keramische vloertegels over de gehele begane grond. De ruimte wordt overspoeld met natuurlijk licht door de grote raampartijen. Extra pluspunt: de schuifpui aan de achterzijde is in 2021 vernieuwd en uitgerust met hoog rendement HR++ glas, wat zorgt voor optimale isolatie en een perfecte verbinding met de tuin.

Eerste verdieping:
De eerste verdieping biedt een zee aan ruimte met twee riante slaapkamers van respectievelijk circa 16,1 m² en 15,7 m². De gehele verdieping is keurig afgewerkt met een laminaatvloer. De complete badkamer van circa 6,3 m² is praktisch ingedeeld en beschikt over zowel een ligbad als een aparte douche, een wastafel en een tweede toilet. 

Tweede verdieping: 
Dankzij de rechte wanden van de woning zijn ook hier twee volwaardige, lichte kamers gecreëerd van respectievelijk circa 13,3 m² en 16,8 m². Daarnaast biedt de ruime overloop toegang tot een zeer praktische aparte wasruimte van circa 7,6 m², ideaal voor wasmachine en droger. De gehele verdieping is uniform afgewerkt met laminaat, wat zorgt voor een verzorgde uitstraling.

Tuin: 
De achtertuin is verzorgd en smaakvol aangelegd met diverse beplanting, groene borders en een ruim terras. Dankzij de ligging op het zuiden geniet u hier vrijwel de hele dag van zon. De tuin biedt daarnaast voldoende privacy en is overzichtelijk en onderhoudsvriendelijk ingericht, waardoor u optimaal gebruik kunt maken van de buitenruimte. Achterin bevindt zich een houten berging van circa 10,4 m², voorzien van elektra, en er is een praktische achterom aanwezig. 

Bijzonderheden: 
• Energielabel A+ 
• Negen zonnepanelen (2012) met 2155 kWh opbrengst in 2024 
• Schuifpui vernieuwd in 2021, HR++ glas 
• Verwarming en warm water via stadsverwarming 
• Moderne keuken, badkamer en toilet 
• Nieuwe dakbedekking woonhuis (2025)
• Nieuwe dakbedekking uitbouw (2022) 
• Volledig geïsoleerd 
• Geen schuin ruimteverlies door rechte bouw 
• Woonoppervlakte circa 162 m² 
• Perceeloppervlakte 180 m² 
• Instap klaar en uitstekend onderhouden 

Locatie: 
De woning is gelegen in de rustige en kindvriendelijke Landstrekenwijk, op korte afstand van scholen, speelpleinen, supermarkt, openbaar vervoer en het nabijgelegen natuur- en bosgebied 't Gelderse Hout. Ook zijn uitvalswegen richting de A6 en N302 eenvoudig bereikbaar. De wijk staat bekend om haar groene karakter, breed opgezette straten en prettige woonomgeving.

Kenmerken