Beschrijving

Deze fijne eengezinswoning aan de Plantage 23 in Lelystad biedt alles wat je zoekt: een lichte woonkamer, inbouwkeuken, drie slaapkamers op de eerste verdieping én een grote zolder met mogelijkheid tot 4e  slaapkamer, kunststof kozijnen en Keralit gevel. De achtertuin ligt bovendien heerlijk vrij, zonder direct achtergelegen bebouwing. Perceeloppervlakte 193 m² eigen grond. 

Bieden vanaf €350.000,- k.k.

Begane grond
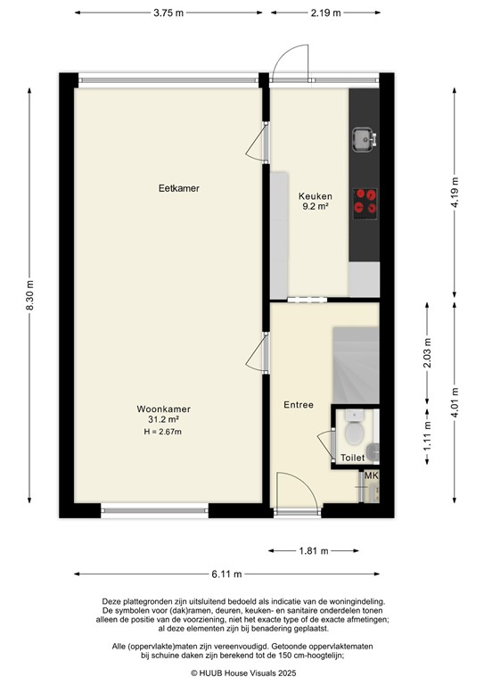
Via de voortuin met houten berging kom je bij de entree van de woning. In de hal bevinden zich de meterkast, de trapopgang naar de eerste verdieping en de toiletruimte.
De doorzonwoonkamer met laminaatvloer en opstelplaats grote eettafel. Aan de voor- of achterzijde (afhankelijk van de situering) vind je de  inbouwkeuken, uitgerust met diverse inbouwapparatuur, waaronder een kookplaat, koelkast met vriezer, oven en vaatwasser. Deur naar de ca. 14 meter diepe achtertuin. 

Eerste verdieping
Op de eerste verdieping zijn drie goed bruikbare slaapkamers (te weten; 9.2, 11.9, 15.7 m²), alle voorzien van laminaatvloer. De kamers zijn geschikt als ouder(s)laapkamer, kinderkamers of bijvoorbeeld thuiswerkplek. Overloop met kastruimte. Geheel betegelde badkamer met inloopdouche, zwevend toilet, wastafelmeubel met geïntegreerde wastafel, design radiator en raam voor natuurlijke ventilatie.

Zolderverdieping
Via een vaste trap bereik je de ruime zolderverdieping. Nu in gebruik als 4e slaapkamer. De zolder is eveneens voorzien van laminaat en Velux dakraam. Opstelplaats wasmachine, droger en CV-ketel (Nefit) 

Bijzonderheden:
Kunststof kozijnen en Keralit gevel
Vrij gelegen achtertuin zonder directe achterburen
Basisscholen, kinderopvang en supermarkt op enkele minuten loopafstand
Glasvezel aanwezig
Energielabel C
Perceeloppervlakte 193 m² eigen grond 
Oplevering: begin april 2026

Kenmerken