Beschrijving

Pinksterbloemlaan 92 (bouwnummer 4) – Twee-onder-een kapwoning met 2 parkeerplaatsen op eigen terrein.

Aan de Pinksterbloemlaan 92 in Lelystad, in de nieuwe woonwijk Warande, is een prachtige twee-onder-een-kapwoning in aanbouw. De bouw is in het voorjaar van 2025 gestart en de oplevering staat gepland voor het tweede kwartaal van 2026. Een unieke kans om straks gloednieuw en duurzaam te wonen op een hoekperceel van circa 317 m² eigen grond! De achtertuin is gelegen op het Noordwesten.
De woning combineert comfort, ruimte en duurzaamheid. Dankzij onder meer het energielabel A++, de uitstekende isolatie en vloerverwarming op zowel de begane grond als de eerste verdieping is de woning helemaal klaar voor de toekomst.

Bieden vanaf € 550.000,- k.k. 

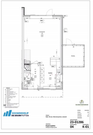
Indeling
Begane grond:
Via de entree bereikt u de hal met meterkast, toilet en trapopgang. Vanuit de hal loopt u door naar de royale tuingerichte woonkamer van ca. 7,17 m diep en 5,67 m breed. Grote ramen zorgen hier voor veel lichtinval en een prachtig uitzicht op de achtertuin. Aan de voorzijde bevindt zich de open keuken. Deze kunt u naar eigen inzicht inrichten. De begane grond is volledig voorzien van vloerverwarming. 
De berging (circa 3,25 x 3,15 m) is aan de zijkant van de woning gelegen en is buitenom bereikbaar. 2 parkeerplaatsen op eigen terrein aanwezig.

Eerste verdieping:
De eerste verdieping beschikt over drie ruime slaapkamers:
- Slaapkamer 1: ca. 4,53 m x 3,42 m
- Slaapkamer 2: ca. 5,00 m x 2,90 m
- Slaapkamer 3: ca. 2,75 m x 2,71 m
De moderne badkamer (zie impressie) wordt compleet opgeleverd met toilet, douche en wastafel, waarbij de sfeervolle betegeling zorgt voor een luxe uitstraling. Ook deze verdieping is voorzien van vloerverwarming.

Tweede verdieping:
De vaste trap leidt naar een royale zolderverdieping, met volop mogelijkheden. Er is reeds een kamer gemaakt met deur en groot dakraam. Deze zou evt. gebruikt kunnen worden als vierde slaapkamer. De aansluitingen voor wasmachine en droger zijn ook op deze etage aanwezig.


Bijzonderheden:
* Twee-onder-een-kapwoning met aangebouwde berging
* Perceel van circa 317 m² eigen grond
* Tuingerichte woonkamer (1.20 meter uitgebouwd) met veel lichtinval
* Open keuken aan de voorzijde (Er wordt geen keuken geleverd)
* Drie slaapkamers en mooie badkamer op de eerste verdieping
* Royale zolderverdieping met opstelling wasmachine/wasdroger en extra kamer voorzien van groot dakraam  
* Energielabel A++
* Vloerverwarming op begane grond en eerste verdieping
* Twee parkeerplaatsen op eigen terrein
* Verwachte oplevering: tweede kwartaal 2026
* Kosten Koper; overdracht via FKJ-notariaat te Lelystad.
* Voordeel van de overdrachtsbelasting (indien van toepassing) komt geheel ten goede van verkoper.
* De woning (bouwnummer 4) maakt onderdeel uit van het project "Blomsterparken", welke overigens volledig is uitverkocht. Voor meer informatie over dit project ga naar Blomsterparken.nl of vraag het de makelaar. 

LET OP! U KUNT DE WONING NIET BEZICHTIGEN ZONDER AFSPRAAK MET ONS KANTOOR!

Kenmerken