Beschrijving

Oldengaerde 38 in Lelystad is een ruime en fijne twee-onder-een-kapwoning met veel praktische leefruimte. De woning heeft een grote woonkamer van ca. 53 m², een garage, vier grote slaapkamers, zolderverdieping waar een 5e slaapkamer is te realiseren en een grote tuin op het zuiden. Parkeren op eigen terrein voor 2 auto’s. Perceeloppervlakte 435 m² eigen grond.

Bieden vanaf € 500.000,- k.k.

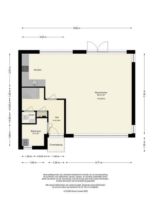
Begane grond:
Via de hal kom je binnen in de woonkamer, het toilet en de bijkeuken.
De woonkamer van ca. 53,4 m² is een lichte en ruime plek met verschillende mogelijkheden voor de indeling. Door de brede ramen en dubbele tuindeuren komt er veel daglicht binnen.
De keuken is praktisch ingedeeld en voorzien van een kookplaat (2025) en koelkast/diepvriescombinatie. De bijkeuken is handig voor extra opslag of als plek voor bijvoorbeeld een extra koelkast of wasruimte.

Eerste verdieping:
Op de eerste verdieping zijn vier ruime slaapkamers te weten 
•    16,6 m² – ruime hoofdslaapkamer met vaste kast
•    11,2 m² – slaapkamer aan de achterzijde
•    10,5 m² – slaapkamer aan de voorzijde
•    8,6 m² – goed als kinder- of werkkamer

De badkamer met een ligbad, douche, wastafel en raampartij.
Vaste trap naar de zolder.

Tweede verdieping:
De tweede verdieping is een open zolderruimte van 22,5 m². Door de hoge nok en het licht is dit een fijne ruimte die je kunt gebruiken als extra slaapkamer, werkplek of hobbyruimte.

Garage:
De vrijstaande garage (22,1 m²) biedt veel ruimte voor de auto, motor of extra opslag.

Tuin:
De woning heeft een grote, zonnige tuin op het zuiden. De tuin is netjes aangelegd en onderhoudsvriendelijk. De nieuwe tuindeuren (2024) geven direct toegang tot het terras.

Bijzonderheden:
- Energielabel A
- Schilderwerk in 2020, achterzijde deels vernieuwd in 2024
- 4 Ruime slaapkamers, grote zolder waar een 5e slaapkamer is te realiseren
- woonoppervlakte 162 m² 
- Perceeloppervlakte 435 m² eigen grond
- Oplevering in overleg

Kenmerken