Beschrijving

Kom deze woning bekijken tijdens onze open-huis-route op zaterdag 28 maart 2026 van 11.00 uur tot 15.00 uur.

Kam & Bronotte makelaars biedt aan: Lemmerstraat 131 te Lelystad. Wonen met een heerlijk-, ieder jaargetijde wisselend, uitzicht over water? In dit relatief jonge en kleinschalig appartementengebouw ‘Havenstaete II’ (20 appartementen en een parkeerdek) bieden wij u op de 5e verdieping dit schitterende appartement aan! Het appartementencomplex beschikt over meerdere zonnepanelen (gezamenlijke opbrengst).

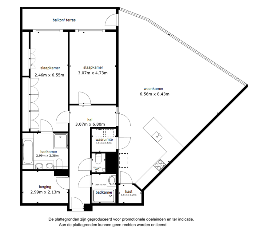
Dit 3- kamer appartement is gelegen op de bovenste verdieping en beschikt onder meer over een zéér lichte en ruime woonkamer met rondom raampartijen, inbouwkeuken voorzien van diverse inbouwapparatuur, zonnig balkon (ca. 13 m2), modern uitgevoerde toiletruimte (2024), 2 ruime slaapkamers, 2 moderne badkamers (2024), een separate wasruimte en voldoende bergruimte. Verder beschikt dit appartement over een eigen parkeerplaats in de parkeerkelder/ garage en uw fiets kunt u stallen in de gezamenlijke fietsenberging. 

“Nu bieden vanaf € 495.000,- k.k. De gestelde vraagprijs betreft een "bieden vanaf prijs". Biedingen vanaf € 495.000,- k.k. zullen door verkoper in behandeling genomen worden.”

Indeling: 
Entree, hal met postbussen, trapopgang én liftinstallatie naar de woonverdieping. Vanuit de hal te bereiken parkeerkelder met eigen parkeerplaats en toegang tot de gezamenlijke fietsenberging.

Vijfde (woon)verdieping:
Entree, hal, modern uitgevoerde toiletruimte (2024) met vrij hangend toilet en fonteintje, separate wasruimte met opstelmogelijkheden voor de wasmachine/ wasdroger en een grote inpandige berging. Tevens toegang tot de (gasten)badkamer(2024) met inloopdouche en wastafel. 

Ruime en zéér lichte woonkamer omringd door raampartijen met een uniek en fantastisch uitzicht over water. Ieder jaargetijde een ander zicht! Ruime opstelmogelijkheden voor een grote eettafel. Deur naar het balkon.

Inbouwkeuken onder meer voorzien van een design afzuigkap, inductiekookplaat, 2x combioven, 2x koelkast/ vriezer, vaatwasser, koffiemachine en een Quooker kokend waterkraan. Technische ruimte met bergruimte en opstelplaats CV- ketel en Mechanische Ventilatie unit.

Vanuit de hal te bereiken 2 ruime slaapkamers, waarvan 1 met toegang tot de modern uitgevoerde badkamer (2024) voorzien van een ruime douchehoek, ligbad, een breed badkamermeubel met 2x geïntegreerde wastafel en 2x kraan, (tweede) vrij hangend toilet en een designradiator.  

Balkon:
Vanuit zowel de woonkamer, als beide slaapkamers te bereiken balkon met schitterend uitzicht over recreatieplas het ‘Bovenwater’.

Bijzonderheden:
Schitterend-, goed onderhouden, 3- kamer appartement gelegen in een waterrijke omgeving.
Een uniek uitzicht vanuit uw woonkamer welke omringd is door raampartijen.
Instap-klaar appartement!
Appartement beschikt over een eigen parkeerplaats in de parkeerkelder en een gezamenlijke fietsenberging.
Appartementencomplex beschikt over 36 zonnepanelen (2018).
Maandelijkse servicekosten á € 250,00.
Energielabel B.
Bouwjaar 2001.
Oplevering in overleg.

Een bod uitbrengen op deze woning gaat via het 'Eerlijk Bieden' systeem. Vraag de link naar het biedingsformulier via ons kantoor óf klik op de button "Breng een bod uit" op onze eigen website.

“Nu bieden vanaf € 495.000,- k.k. De gestelde vraagprijs betreft een "bieden vanaf prijs". Biedingen vanaf € 495.000,- k.k. zullen door verkoper in behandeling genomen worden.”

Kenmerken