Beschrijving

Kam & Bronotte Makelaars biedt aan: Langezand 19 te Lelystad!

Op zoek naar een ruime eengezinswoning die je helemaal naar eigen smaak kunt moderniseren? Dan is deze woning aan de Langezand 19 in Lelystad absoluut het bezichtigen waard! Met drie slaapkamers, een zonnige tuin, een ruime berging en recent vernieuwde badkamer en toilet, biedt deze woning een solide basis met volop mogelijkheden om er jouw droomhuis van te maken. De woning heeft een woonoppervlakte van ca. 104 m² en staat op een perceel van 195 m² eigen grond. 

De bieden vanaf prijs betreft €300.000 k.k. De gestelde vraagprijs betreft een bieden vanaf prijs.

Indeling:

Begane grond:
Entree/hal met meterkast en vernieuwde toiletruimte (2024). Vanuit de hal toegang tot de woonkamer met grote raampartijen, waardoor er veel daglicht naar binnen valt. De woonkamer biedt ruimte voor zowel een zit- als eethoek. Aan de achterzijde bevindt zich de keuken, voorzien van diverse inbouwapparatuur, waaronder een inductieplaat, oven, afzuigkap en vaatwasser. 

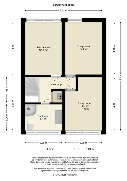
Eerste verdieping:
Overloop met toegang tot drie slaapkamers van ca. 12,2 m², nog een van 12,2 m² en 11,3 m². De badkamer is in 2025 volledig vernieuwd en voorzien van een moderne douche en wastafelmeubel.

Berging:
Aan de voorzijde van de woning bevindt zich een ruime stenen berging, ideaal voor fietsen, tuinmeubilair en extra opslag. 

Tuin:
De woning beschikt over een zonnige achtertuin met achterom. De tuin is onderhoudsvriendelijk aangelegd en biedt volop mogelijkheden om naar eigen wens in te richten, bijvoorbeeld met een terras of speelplek.

Bijzonderheden:
•	Woonoppervlakte ca. 104 m²
•	Perceeloppervlakte 195 m²
•	Bouwjaar 1971
•	Energielabel C 
•	Vernieuwd toilet (2024)
•	Vernieuwde badkamer (2025)
•	3 slaapkamers op de eerste verdieping
•	Keuken met diverse inbouwapparatuur
•	Ruime stenen berging in de voortuin
•	Glasvezel aanwezig

Omgeving:
Langezand 19 is gelegen in een rustige en kindvriendelijke woonwijk in Lelystad. Op loop- en fietsafstand vindt u diverse scholen, speelgelegenheden, supermarkten en dagelijkse voorzieningen. Ook zijn bushaltes en NS-station Lelystad Centrum snel bereikbaar, waardoor u binnen korte tijd in onder andere Almere of Amsterdam bent. Met de auto bereikt u eenvoudig de A6 richting de Randstad.

Kenmerken