Beschrijving

Op een fijne, centrale plek in Lelystad staat deze ruime en uitstekend onderhouden eengezinswoning. Met kunststof kozijnen en gevelbeplating, een lichte woonkamer (ca. 27,6 m²), sfeervolle landelijke keuken, nette badkamer, 3 slaapkamers (ca. 20,5 m², 11,0 m², 8,6 m²) en een fraai aangelegde achtertuin van ca. 22 meter diep biedt dit huis alles voor jarenlang woonplezier. Perceeloppervlakte 211 m2 eigen grond. Bouwjaar 1974.

Bieden vanaf € 325.000,- k.k.

Indeling
Begane grond
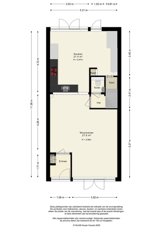
Entree/hal met vernieuwde meterkast en toiletruimte met zwevend sanitair.
Lichte, ruime woonkamer (ca. 27,6 m²) met laminaatvloer en openslaande deuren aan de voorzijde.
Aan de tuinzijde bevindt zich de keuken (ca. 21,4 m²) met PVC-vloer en inbouwapparatuur (inductiekookplaat, afzuigkap, koelkast, vaatwasser en oven). Vanuit de keuken heb je via openslaande deuren én een separate loopdeur toegang tot de achtertuin.  Via de trapopgang in de woonkamer bereik je de eerste verdieping.

Eerste verdieping
Overloop met toegang tot drie ruime slaapkamers (ca. 20,5 m², 11,0 m², 8,6 m²) Voorheen waren dit 4 kamers, dit is eenvoudig weer terug te brengen.
Nette badkamer met inloopdouche, wastafelmeubel en een tweede (zwevend) toilet. Gehele verdieping is voorzien van een nette laminaatvloer. Kast met opstelplaats voor de CV ketel.

Tuin
De achtertuin ligt op het noorden, maar is dankzij de diepte (ca. 22 meter) en de vrije ligging de hele dag door voorzien van zowel zonnige als schaduwrijke plekken. De tuin is smaakvol aangelegd met terras, vijverpartij, borders, kunstgras, tuinhuis met elektra en een achterom.

Ligging
Gelegen in de rustige en kindvriendelijke woonwijk Kempenaar, met scholen, winkels, openbaar vervoer en sportvoorzieningen om de hoek. Het stadscentrum en het NS-station zijn binnen enkele minuten bereikbaar.
Kortom: deze woning combineert ruimte, comfort en duurzaamheid met een prachtige, diepe tuin en een prettige ligging. Instapklaar voor (jonge) gezinnen en iedereen die zorgeloos wil wonen. Plan snel een bezichtiging en laat je verrassen!

Bijzonderheden
•    Energielabel A
•    Kunststof kozijnen (2005)
•    11 zonnepanelen (huur € 67,- p/m)  
•    Meterkast vernieuwd
•    Elektrisch zonnescherm aan de voorzijde
•    Tuin met strakke aanleg, borders, terras, vijverpartij en tuinhuis
•    Oplevering in overleg

Kenmerken