Beschrijving

Kam & Bronotte makelaars biedt aan: Kamp 20-18 te Lelystad!

Bieden vanaf € 325.000,- k.k.

Ben jij op zoek naar een ruime eengezinswoning met volop potentie, gelegen op een fijne locatie in Lelystad? Dan is deze woning aan de Kamp 20-18 absoluut het bekijken waard!
Deze tussenwoning beschikt over circa 114 m² woonoppervlakte en biedt een uitstekende basis om volledig naar eigen smaak te moderniseren. Ideaal voor starters, doorstromers of handige kopers die hun eigen droomwoning willen realiseren.

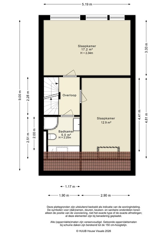
Indeling

Begane grond:
Entree met hal, meterkast, toilet en toegang tot de woonkamer. De lichte en tuingerichte woonkamer van ca. 27 m² biedt een prettige leefruimte met zicht op de achtertuin. Aan de voorzijde bevindt zich de keuken, voorzien van diverse inbouwapparatuur. Via de entree en de voorkant van de woning is tevens een toegang tot een inpandige berging van ca. 8,8m².

Eerste verdieping:
Overloop met toegang tot twee ruime slaapkamers van ca. 17,2 m² en 12,9 m². De badkamer is functioneel uitgevoerd en voorzien van douche, toilet, wastafel en bad.

Tweede verdieping:
Vaste trap naar de zolderverdieping met overloop, wasruimte en een derde slaapkamer van ca. 14,7 m². Tevens bevindt zich hier de opstelling van de CV-installatie.

Tuin:
De woning beschikt over een achtertuin op het zonnige gelegen zuiden, waardoor je hier volop van de zon kunt genieten met bestrating, beplanting en erfafscheiding. Daarnaast beschikt de woning over een parkeerplaats op eigen terrein, wat zorgt voor extra gemak.

Bijzonderheden:
- Woonoppervlakte ca. 114 m²
- Inhoud ca. 412 m³
- 3 ruime slaapkamers
- CV-ketel op zolder met wasopstelling
- Mechanische ventilatie aanwezig
- Keuken deels vernieuwd (o.a. vaatwasser 2025)
- Extra boiler in de keuken aanwezig
- Gelegen in een rustige en kindvriendelijke woonwijk
- Nabij voorzieningen, scholen en uitvalswegen
- Parkeren op eigen terrein
- Tuin op het zuiden.

Kortom: een ruime woning met volop mogelijkheden op een fijne locatie! Plan nu snel een bezichtiging bij ons in.

Kenmerken