Beschrijving

Zonnig en ruim 4-kamer appartement met balkon, eigen parkeerplaats en berging – op loopafstand van het stadscentrum!

Op de tweede verdieping van het moderne en centraal gelegen appartementencomplex ‘De Ark’ vindt u dit royale en instapklare 4-kamer appartement. Het complex, ligt direct aan de rand van het stadscentrum van Lelystad. Hierdoor heeft u alle winkels, restaurants, supermarkten, openbaar vervoer en overige voorzieningen binnen handbereik, terwijl u toch profiteert van een rustige woonomgeving.

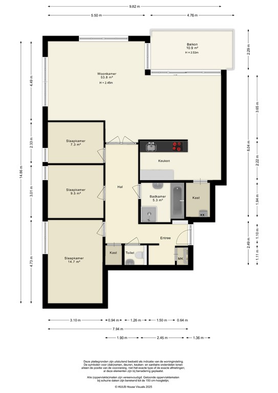
Het appartement beschikt over een indrukwekkende woonkamer van ca. 53,8 m², drie slaapkamers, een nette badkamer, separate wasruimte én een ruim balkon op het zuid/zuidwesten. Bovendien hoort er een eigen parkeerplaats in de parkeerkelder en een eigen (fietsen)berging van ca. 8,7 m² bij.

Vraagprijs €425.000,- k.k. 

Indeling
Begane grond:
Afgesloten centrale entree met bellentableau, postkasten en lift. Vanuit hier bereikt u zowel de parkeerkelder (-1) met uw eigen parkeerplaats en berging, als het overdekte bordes naar de woningen.

Appartement:
Entree met ruime hal, garderobe, meterkast, bergkast en betegeld toilet met vrij hangend closet en fonteintje.
De riante woonkamer (ca. 53,8 m²) biedt volop ruimte voor een royale zithoek én grote eettafel. Via de schuifpui bereikt u het zonnige balkon (ca. 10,9 m²), ideaal gelegen op het zuiden.

De keuken is uitgerust met een afzuigkap, kookplaat, magnetron, koelkast en vaatwasser.
Verder is er een praktische technische-/wasruimte met opstelplaats voor de c.v.-installatie, mechanische ventilatie en de wasmachine-/drogeraansluiting.

De badkamer is voorzien van douche, wastafel, en radiator. Er zijn drie slaapkamers van respectievelijk ca. 14,7 m², 9,5 m² en 7,3 m².

Buitenruimte
Ruim balkon (ca. 10,9 m²) op het zuiden


Bijzonderheden:
Bouwjaar: 2008
Woonoppervlakte: ca. 119 m²
Inhoud: ca. 354 m³
Energielabel: A 
Eigen parkeerplaats in parkeerkelder
Eigen berging 
Maandelijkse VvE-bijdrage: € 224,91 (incl. o.a. opstalverzekering, tuinonderhoud en onderhoud gemeenschappelijke delen)
Gelegen op loopafstand van het stadscentrum met alle voorzieningen dichtbij

Kenmerken