Beschrijving

Kam & Bronotte makelaars biedt aan: Kamp 10-14 te Lelystad.

Bieden vanaf €380.000,- k.k.

Op een rustige locatie in de Kamp staat deze goed onderhouden eengezinswoning met eigen parkeergelegenheid, een separate berging aan de voorzijde en een zonnige tuin op het westen. De woning is de afgelopen jaren op belangrijke punten gemoderniseerd, waaronder de keuken, badkamer en het toilet (2022), en beschikt over een praktische indeling met verrassend veel ruimte.

Begane grond
Entree, hal met meterkast, modern toilet (2022) en trapopgang. De woonkamer is ruim opgezet en tuingericht, met een prettige lichtinval dankzij de grote raampartijen. Aan de voorzijde bevindt zich de keuken in rechte opstelling, uitgevoerd in een moderne stijl en vernieuwd in 2022. De gehele begane grond is voorzien van een nette laminaatvloer.

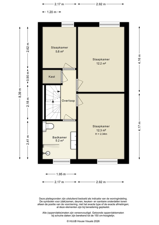
Eerste verdieping
Overloop met toegang tot drie slaapkamers en de badkamer. De slaapkamers zijn van goed formaat en praktisch in te delen. De badkamer is in 2022 vernieuwd en beschikt over een inloopdouche, wastafelmeubel en tweede toilet.

Tweede verdieping
Via vaste trap te bereiken zolderverdieping met een open ruimte van ca. 18 m². Deze verdieping is ideaal te gebruiken als extra slaapkamer, werkruimte of hobbyruimte. De zolder is voorzien van twee vernieuwde dakramen, wat zorgt voor extra lichtinval en een prettige sfeer.

Tuin
De achtertuin is gelegen op het westen, waardoor je hier in de middag en avond van de zon kunt genieten. De tuin biedt voldoende ruimte voor een zit- en loungegedeelte en is via de achterzijde bereikbaar. Aan de voorzijde bevindt zich een separate stenen berging en parkeergelegenheid op eigen terrein.

Bijzonderheden
- Woonoppervlakte ca. 103 m²
- Keuken, badkamer en toilet vernieuwd in 2022
- Twee vernieuwde dakramen op zolder
- Drie slaapkamers + ruime zolder
- Tuin op het westen
- Parkeren op eigen terrein
- Separate berging aan de voorzijde
- Laminaatvloer op alle verdiepingen

Omgeving
De woning is gelegen in de Kamp, een rustige en groene woonwijk in Lelystad met diverse voorzieningen in de directe omgeving. Denk aan supermarkten, scholen, sportfaciliteiten en openbaar vervoer. Daarnaast zijn uitvalswegen richting de Randstad goed bereikbaar.

Kenmerken