Beschrijving

Kam & Bronotte Makelaars biedt aan: Horst 16-8 te Lelystad!

Wonen op een unieke plek aan de bosrand met volop rust, privacy én ruimte! Deze verrassend ruime tussenwoning ligt direct aan het groen en biedt een vrij uitzicht waar je elke dag van geniet. Hier ervaar je het beste van twee werelden: een rustige, natuurlijke woonomgeving én alle dagelijkse voorzieningen binnen handbereik.

De woning is bovendien goed onderhouden en op belangrijke punten gemoderniseerd, waardoor je hier zonder grote zorgen kunt intrekken. Met een royale woonkamer, grote slaapkamers en een fijne tuin met overkapping is dit een ideale woning voor wie ruim wil wonen op een bijzondere locatie.

Bieden vanaf € 375.000,- k.k.

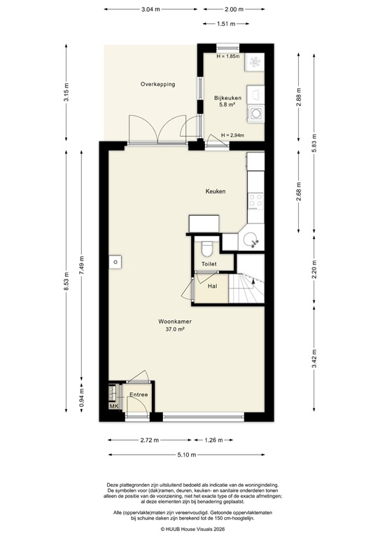
Indeling

Begane grond:
Entree met meterkast. De woonkamer van ca. 37 m² is heerlijk licht en biedt een fijne leefruimte met zicht richting het groen. De houtkachel zorgt voor extra sfeer.
Aan de achterzijde bevindt zich de keuken met aansluitend de bijkeuken (ca. 5,8 m²). Vanuit hier bereik je de tuin met overkapping, een heerlijke plek om beschut buiten te zitten. In de hal bevindt zich het vernieuwde toilet (2022) en de trapopgang naar de eerste verdieping.

Eerste verdieping:
Overloop met toegang tot een bijzonder ruime slaapkamer van ca. 32,2 m² (voorheen meerdere kamers).
De badkamer (ca. 5,4 m²) is modern uitgevoerd (2021) en voorzien van douche, wastafel en toilet.

Tweede verdieping:
Vaste trap naar de zolder met nog een ruime slaapkamer van ca. 23,4 m² en dakkapellen met kunststof kozijnen (2024). Daarnaast is er extra bergruimte aanwezig.

Tuin:
De voortuin grenst aan de bosrand, wat zorgt voor een unieke combinatie van rust, privacy en groen uitzicht. Hier woon je letterlijk aan de natuur. Een zeldzame ligging in Lelystad! De achtertuin is gelegen op het westen en beschikt over een overkapping van ca. 9.5 m². Daarnaast beschikt de woning over een externe berging van ca. 5 m².

Bijzonderheden:
- Gelegen direct aan de bosrand
- 119 m² woonoppervlakte
- Royale woonkamer van ca. 37 m²
- Grote slaapkamer van ca. 32 m²
- Zolderkamer van ca. 23 m² met dakkapellen
- Badkamer (2021) en toilet (2022) vernieuwd
- HR++ glas en deels recent vernieuwde kozijnen
- CV-ketel (2022)
- Houtkachel voor extra sfeer
- Energielabel C

Omgeving:
Rustig gelegen, maar toch dichtbij alle voorzieningen zoals winkels, scholen en uitvalswegen. Ideaal voor wie groen wil wonen zonder in te leveren op bereikbaarheid.

Wonen aan de bosrand met verrassend veel ruimte?
Plan snel een bezichtiging en laat je verrassen door deze unieke ligging!

Kenmerken