Beschrijving

Kam & Bronotte makelaars biedt aan: Hondsrug 25 te Lelystad. Deze robuuste-, goed onderhouden en modern afgewerkte geschakelde twee- onder- één- kapwoning (bouwjaar 2000) met aangebouwde stenen garage is gelegen op een rustige locatie in de gewilde en kindvriendelijke woonwijk 'de Landstrekenwijk'. De woning is gelegen op een ruime en zonnige kavel van 251 m2 eigen grond en beschikt onder meer over een (ca.) 8.70 meter brede tuingerichte woonkamer met laminaatvloer met vloerverwarming, modern uitgevoerde inbouwkeuken (2021) voorzien van diverse inbouwapparatuur, van binnenuit te bereiken garage (ca. 16 m2), modern betegelde toiletruimte, 3 ruime slaapkamers op de eerste verdieping, licht betegelde badkamer en nog eens 2 royale kamers op de tweede verdieping wat het totaal aantal slaapkamers op 5 brengt. Op steenworpafstand van kinderspeelplaats en in de nabije omgeving van buurtwinkelcentra, gezondheidscentrum en diverse (basis)scholen gelegen. Tevens binnen enkele (auto)minuten te bereiken in- en uitvalswegen (A6 richting noorden/ Amsterdam en N302 richting Harderwijk) gelegen.  

Bieden vanaf € 525.000,- k.k. 

Indeling:
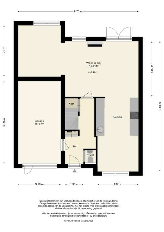
Entree, hal, meterkast en betegelde toiletruimte met vrij hangend toilet en fonteintje. Vanuit de hal te bereiken aangebouwde stenen garage (ca. 16 m2). Ca. 8.70 meter brede tuingerichte woonkamer met en zijkamer. Openslaande deuren naar de royale en zonnige achtertuin op het zuiden. Woonkeuken met ruime opstelmogelijkheden voor grote eettafel en een modern uitgevoerde inbouwkeuken (2021) onder meer voorzien van afzuigkap, kookplaat, oven, koelkast, vaatwasser en Quooker. De begane grond is afgewerkt met een fraaie laminaatvloer met vloerverwarming.

Eerste verdieping:
Overloop. 3 grote slaapkamers. Modern betegelde badkamer met inloopdouche, breed badkamermeubel met geïntegreerde wastafel en 2x kraan, (tweede) vrij hangend toilet en raam voor natuurlijk lichtinval. Vaste trap naar tweede verdieping.

Tweede verdieping:
Overloop. Nog eens 2 kamers, waarvan 1 met grote kastenwand en 2 dakramen. Kamer met opstelplaats wasmachine, droger en mechanische ventilatie. 

Tuin:
Ruime en zonnige achtertuin op het zuiden gesitueerd welke onder meer beschikt over een groot zonneterras, gazon, diverse bomen/ beplanting en vrijstaande houten berging met gezellige overkapping met houtkachel. Aan de voorzijde van de woning kijkt u vrij weg over groenstrook/ stadsgracht met speelweide en is er parkeergelegenheid op eigen terrein. 

Bijzonderheden:
Robuuste geschakelde twee- onder- één- kapwoning gelegen in de gewilde woonwijk 'de Landstrekenwijk'. 
Heerlijk kindvriendelijk hofje met veel speelgelegenheden en enkel bestemmingsverkeer. 
Nabij buurtwinkelcentrum, diverse (basis)scholen en in-/ en uitvalswegen van Lelystad gelegen.
Zéér veel ruimte!
Moderne afwerking van toiletruimte, inbouwkeuken en badkamer.
Elke verdieping is voorzien van een moderne laminaat vloer
Parkeren op eigen terrein.
Deze woning is aangesloten op stadsverwarming en maakt derhalve géén gebruik van gas. Toekomstige aanpassingen en kosten aan de woning in het kader van het vervangen van een CV- ketel e.d. zijn dan ook niet te verwachten.
Energielabel A.
Bouwjaar 2000.
251 m2 eigen grond.
Oplevering in overleg.

Kenmerken