Beschrijving

In de geliefde en ruim opgezette woonwijk Buitenhof staat deze royale twee-onder-een-kapwoning (2015) met ruime woonkamer, schitterende keuken, moderne badkamer, 4 slaapkamers, diepe en fraai aangelegde tuin (ca. 20 x 9 meter), gelegen op 369 m² eigen grond en parkeren op eigen terrein voor maar liefst 4 auto’s.

Bieden vanaf €575.000,- k.k.

Omschrijving:
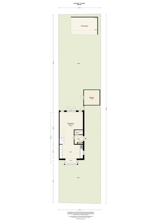
Entree, meterkast, toiletruimte met zwevend toilet en fonteintje. De schitterende woonkamer vormt het hart van de woning en kenmerkt zich door de fraaie lichtinval en de directe verbinding met de tuin via de dubbele tuindeuren. De combinatie van een strakke laminaatvloer, comfortabele vloerverwarming én een sfeervolle gashaard zorgt hier voor een aangename en luxe woonbeleving. Daarnaast beschikt de woning over een praktische trapkast, ideaal voor extra bergruimte.

Aan de voorzijde van de woning bevindt zich de schitterende keuken, uitgevoerd met diverse inbouwapparatuur en recent voorzien van een stijlvolle wrap, waardoor deze een eigentijdse en verzorgde uitstraling heeft gekregen. De indeling is praktisch en biedt volop mogelijkheden voor zowel dagelijks gebruik als uitgebreid koken.

Eerste verdieping:
Op de eerste verdieping bevinden zich drie goed bemeten slaapkamers van circa 14,8 m², 11,9 m² en 9,6 m², evenals een moderne badkamer. De badkamer is volledig betegeld en compleet uitgevoerd met een douchehoek, ligbad, zwevend toilet en een wastafelmeubel met geïntegreerde wastafel. Dankzij de recente vernieuwingen, waaronder een nieuwe wastafel en spiegelkast (2021) en een vernieuwde douchecabine (2025), heeft de ruimte een frisse en moderne uitstraling.

Tweede verdieping
De tweede verdieping verrast met een volwaardige vierde slaapkamer van circa 9,0 m², voorzien van een dakraam dat zorgt voor prettig daglicht. De ruime overloop met hoge nok biedt een mooi ruimtelijk gevoel en is ideaal in te richten als werkplek. Tevens bevindt zich hier een praktische kast met de opstelplaats voor de cv-ketel en de aansluiting voor wasmachine en droger.

Tuin:
Buiten zet de woning zijn sterke punten moeiteloos voort. De woning staat op een royaal perceel van maar liefst 369 m² eigen grond en beschikt over een fraai aangelegde achtertuin van circa 20 meter diep en 9 meter breed, wat zorgt voor een heerlijke combinatie van ruimte en privacy. Hier geniet je optimaal van het buitenleven. De aanwezige overkapping met elektra vormt een sfeervolle plek om het hele jaar door te ontspannen, terwijl de vrijstaande berging zorgt voor extra praktische ruimte.

Aan de voorzijde beschikt de woning over een ruime eigen oprit met parkeergelegenheid voor maar liefst 4 auto's, wat zorgt voor extra gemak en comfort in het dagelijks gebruik.

De woning is daarnaast voorzien van diverse extra’s die bijdragen aan het wooncomfort, zoals 2 zonnepanelen, rolluiken op de eerste verdieping en mechanische ventilatie. Met een energielabel A is bovendien sprake van een energiezuinige woning, wat zorgt voor lagere energielasten en extra wooncomfort.

De ligging in Buitenhof maakt het geheel compleet. Deze moderne, rustige en groene woonwijk staat bekend om haar ruime opzet, waterpartijen, golfbaan en vele groenvoorzieningen. De bereikbaarheid is uitstekend: binnen enkele autominuten zit je op de A6 richting Almere en Amsterdam, terwijl ook het openbaar vervoer goed geregeld is met een bushalte in de wijk en een directe verbinding naar het treinstation. Daarnaast bevinden basisscholen en een supermarkt zich in de nabije omgeving, waardoor alle dagelijkse voorzieningen binnen handbereik zijn. Je woont hier in alle rust, met alle voorzieningen dichtbij.

Bijzonderheden
Bouwjaar 2015
4 slaapkamers
Rolluiken op de eerste verdieping
Meterkast met 3-fase aansluiting
Volledig geïsoleerd
Achtertuin ca. 20 meter diep en 9 meter breed
Luxe overkapping met elektra
Als bewoner van Buitenhof wordt u automatisch lid (‘aangeslotene’) van Stichting Buitenhof. Deze zorgt voor het behoud en het onderhoud van het groen en het water in de wijk. De bijdrage daarvoor bedraagt €69,19 per kwartaal voor parkonderhoud en parkfaciliteiten
Rustige en kindvriendelijke woonomgeving
Perceel 369 m² eigen grond
Energielabel A
Oplevering in overleg

Kenmerken