Beschrijving

Kam & Bronotte Makelaars biedt aan: Harderwijkstraat 21 te Lelystad!

In de rustige, kindvriendelijke woonwijk staat deze verzorgde woning op een perceel van 166 m² eigen grond. De woning is uitstekend onderhouden, heeft een energielabel B, parkeren op eigen terrein met laadpaal, een woonoppervlakte van ca. 120 m², en is voorzien van een moderne badkamer (2022), een nette keuken en een tuin met ruime berging.

Een ideale gezinswoning op een centrale, groene locatie met alle voorzieningen binnen handbereik!

Bieden vanaf € 375.000 k.k. De gestelde vraagprijs betreft een “bieden-vanaf” prijs. 

Indeling

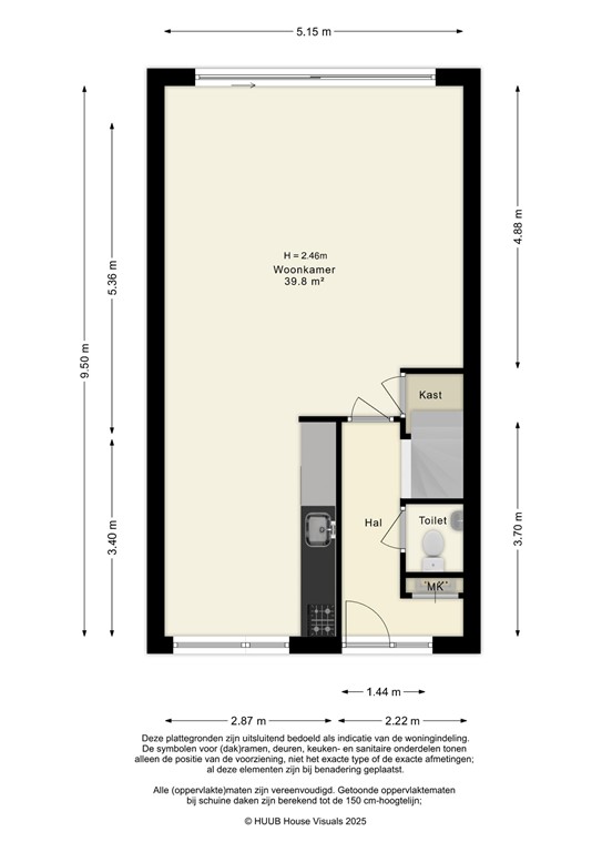
Begane grond
Binnenkomst in hal met meterkast, trapopgang en toiletruimte. De ruime woonkamer (ca. 39,8 m²) beschikt over een nette laminaatvloer en een grote schuifpui waardoor er veel daglicht binnenvalt. De schuifpui geeft directe toegang tot de ruime achtertuin.
Aan de voorzijde bevindt zich de halfopen keuken, voorzien van diverse inbouwapparatuur: keramische kookplaat, combi-oven, afzuigkap (2023), vaatwasser (2019) en een royale Amerikaanse koelkast (2016).

Eerste verdieping
Overloop met toegang tot de drie slaapkamers van ca. 14 m², 12,3 m² en 8,5 m², allen voorzien van laminaatvloeren en raambekleding. De volledig vernieuwde badkamer uit 2022 is modern afgewerkt en uitgerust met een ruime inloopdouche met regendouche, wastafelmeubel met twee wastafels en een tweede toilet.

Tweede verdieping
Via een vaste trap bereik je de ruime zolderverdieping van ca. 19,9 m². Hier bevindt zich een vierde slaapkamer met toegang via de schuifpui tot het ruime dakterras van ca. 12,1 m². Hier vind je ookde opstelplaats van de CV-ketel en was/droger aansluiting. 

Tuin
De achtertuin is keurig aangelegd, grotendeels bestraat en beschikt over een ruime stenen berging met elektra, achterom en een elektrisch zonnescherm . Aan de voorzijde is eveneens een verzorgde voortuin aanwezig met de mogelijkheid voor parkeren op eigen terrein!

Bijzonderheden
- Bouwjaar 1994 
- Woonoppervlakte ca. 120 m² 
- Perceel 166 m²
- Energielabel B
- Parkeren op eigen terrein met laadpaal
- Moderne badkamer uit 2022
- CV-ketel Remeha Avanta (huur)
- Laminaatvloeren op alle verdiepingen
- Gelegen nabij scholen, winkels, openbaar vervoer en uitvalswegen
- Glasvezel aanwezig

Een nette, goed onderhouden gezinswoning met moderne badkamer in een geliefde wijk van Lelystad.
Ervaar zelf de ruimte, het comfort en de fijne ligging van de Harderwijkstraat 21, met uitvalswegen richting Almere en Enkhuizen op korte afstand!

Kenmerken