Beschrijving

Kam & Bronotte makelaars biedt aan: Duinvoet 80 te Lelystad. Wonen in het buitengebied van Lelystad, omringd door groen, water en rust? Dit is uw kans! Te midden van dit bijzondere woonpark 'Houtribhoogte'-, aan de kust van het IJsselmeer, staat deze verrassend ruime ééngezins-/ eindwoning met parkeren-, onder carport, voor meerdere voertuigen op eigen terrein. Kenmerkend voor dit park is de karakteristieke architectuur van de woningen in een open en natuurlijke omgeving. Deze omgeving is ooit ontstaan in een tijdelijk zanddepot voor de bouwactiviteiten in de Flevopolder; een duinachtig gebied, maar wel achter een dijk. De woning beschikt onder meer over een ruime woonkamer welke toegang geeft tot een groot terras met vrij uitzicht, een royale kelder (ca. 20 m2), inbouwkeuken met schiereiland voorzien van diverse inbouwapparatuur, een geheel betegelde badkamer en 3 ruime slaapkamers (respectievelijk (ca.) 17-, 15- en 8.5 m2), waarvan 1 met toegang tot een groot dakterras. 

Wonen in woonwijk 'Houtribhoogte' betekent wonen omringd door mandelig (natuur)gebied. In de nabije omgeving bevinden zich (o.a.) restaurant De Brass en ook Batavia Stad Fashion Outlet met meer dan 150 winkels van internationale modemerken en de havenkom van Batavia Haven met diverse horecagelegenheden als: MJ grand café, De Rede van Batavia, Trés Tapas en restaurant De Cantine. Ook de in- en uitvalswegen naar de snelweg of Oostvaardersdijk liggen op enkele (auto)minuten afstand.

"Nu bieden vanaf € 495.000,- k.k. De gestelde vraagprijs betreft een "bieden vanaf prijs". Biedingen vanaf € 495.000,- k.k. zullen door verkoper in behandeling genomen worden". 

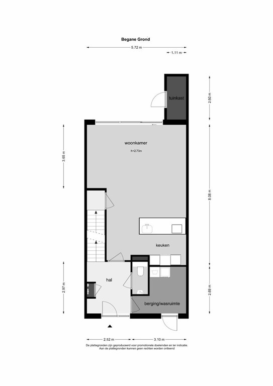
Indeling:
Entree, hal, meterkast en toiletruimte met vrij hangend toilet en fonteintje. Vanuit de hal te bereiken inpandige berging met opstelplaats CV- ketel, Mechanische Ventilatie unit en loopdeur naar de voorzijde van de woning. Ruime- en, mede door de grote raampartijen tot aan de grond, zéér lichte woonkamer met houten vloerdelen en schuifpui naar het riante-, vrij gelegen, terras met fraai uitzicht over mandelig (natuur)gebied. Ruime opstelmogelijkheden voor grote eettafel. In lichte kleurstelling uitgevoerde inbouwkeuken met schiereiland voorzien van diverse inbouwapparatuur. Middels schuifdeur te bereiken trap naar de kelder.

Verdieping -1:
Ruime-, voor meerdere doeleinden geschikte, kelderverdieping (ca. 30 m2) met vaste kastenwanden. Hier bevindt zich tevens de aansluiting voor de wasmachine/ wasdroger.

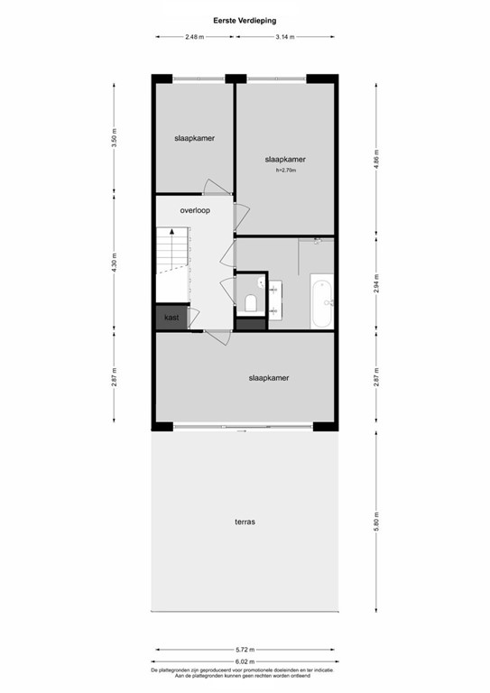
Verdieping 1:
Overloop. 3 ruime slaapkamers, waarvan 1 met schuifpui naar het riant dakterras. Licht betegelde badkamer met inloopdouche, ligbad, breed badkamermeubel met 2x wastafel kraan en een designradiator. Separate toiletruimte met (tweede) vrij hangend toilet en fonteintje.

Balkon:
Groot dakterras te bereiken vanuit de ouderslaapkamer op de eerste verdieping.

Tuin:
Groot-, vrij gelegen, terras op het zonnige zuiden gesitueerd. Fraai uitzicht over mandelig (natuur)gebied. Aan de voorzijde van de woning is er parkeergelegenheid voor meerdere voertuigen-, onder carport, op eigen terrein.

Bijzonderheden:
Wonen in het buitengebied van Lelystad omringd door groen, water en rust.
Iedere dag een vakantiegevoel in eigen huis!
Royale kelder welke voor meerdere doeleinden geschikt is.
3 grote slaapkamers, waarvan 1 met groot dakterras.
Woning is gebouwd/ afgewerkt met aluminium deuren en kozijnen. Zéér onderhoudsarm dus!
Bijdrage aan onderhoudskosten voor mandelig gebied bedraagt ca. € 72,50 per kwartaal.
Energielabel B.
Bouwjaar 2007.
138 m2 eigen grond.
Oplevering in overleg; een snelle oplevering is bespreekbaar.

Een bod uitbrengen op deze woning gaat via het 'Eerlijk Bieden' systeem. Vraag de link naar het biedingsformulier via ons kantoor óf klik op de button "Breng een bod uit" op onze eigen website.

"Nu bieden vanaf € 495.000,- k.k. De gestelde vraagprijs betreft een "bieden vanaf prijs". Biedingen vanaf € 495.000,- k.k. zullen door verkoper in behandeling genomen worden".

Kenmerken