Beschrijving

Kom deze woning bekijken tijdens onze open-huis-route op zaterdag 28 maart 2026 van 11.00 uur tot 15.00 uur.

Kam & Bronotte makelaars biedt aan: Duinvoet 48 te Lelystad!

Wonen alsof u iedere dag op vakantie bent?
Welkom in het unieke woonpark Houtribhoogte, waar architectuur, natuur en rust samenkomen. Deze zéér goed onderhouden vrijstaande woning biedt u een ongeëvenaarde woonbeleving.
Aan de kust van het IJsselmeer, omringd door waterpartijen, groen en een natuurlijke, parkachtige omgeving, staat deze speels ingedeelde en uitstekend afgewerkte woning met maar liefst 147 m² gebruiksoppervlakte wonen en een royaal dakterras van circa 32 m². 
De karakteristieke architectuur, de verhoogde ligging en het vrije uitzicht over het mandelige natuurgebied maken dit een woning in een klasse apart.

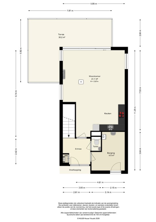
Indeling

Begane grond:
Entree, hal met meterkast en modern betegelde toiletruimte met vrij hangend toilet en fonteintje. Vanuit de hal bereikt u de inpandige (verwarmde) berging met opstelplaats voor de CV-ketel en mechanische ventilatie-unit, alsmede een loopdeur naar de voorzijde van de woning.
De royale woonkamer (ca. 41 m²) is dankzij de grote raampartijen tot aan de vloer uitzonderlijk licht. De sfeervolle ‘Dik Geurts’ houtkachel vormt het warme middelpunt van de ruimte. Middels de schuifpui heeft u toegang tot het riante dakterras met fraai uitzicht over het omliggende natuurgebied. Tevens is de woonkamer voorzien van een airco-installatie.
De moderne inbouwkeuken (2020) is uitgevoerd in lichte kleurstelling en voorzien van onder andere een Bora inductiekookplaat met geïntegreerde afzuiging, Quooker, oven/magnetron, koelkast en vaatwasser (2023).

Verdieping -1:
Royale overloop/hal. Drie ruime slaapkamers (respectievelijk ca. 19 m², 17,5 m² en 9 m²), allen met directe toegang tot het buitenterrein, waardoor deze woonlaag verrassend licht en ruim aanvoelt.
De luxe betegelde badkamer (2020) beschikt over een inloopdouche, breed badkamermeubel met dubbele wastafel en designradiator. Daarnaast is er een separate toiletruimte met tweede vrij hangend toilet en fonteintje.
Tevens is er een extra (onbenoemde) ruimte met infrarood sauna.
Balkon / terras
Vanuit de woonkamer, middels schuifpui, bereikt u het riante dakterras (ca. 30 m²) met een panoramisch uitzicht over het mandelige natuurgebied.

Tuin en omgeving:
Rondom de woning bevindt zich het mandelige natuurgebied met waterpartijen, bomen en een parkachtig landschap. Hier ervaart u rust, ruimte en privacy. Een woonomgeving die het gehele jaar een vakantiegevoel geeft.
Om deze bijzondere leefomgeving in stand te houden bedraagt de bijdrage circa € 125 per kwartaal.

Bijzonderheden:
- Vrijstaande woning in uniek woonpark Houtribhoogte
- 147 m² gebruiksoppervlakte wonen 
- 32 m² gebouw gebonden buitenruimte 
- 544 m³ bruto inhoud 
- Energielabel A (na afgifte zijn 9 zonnepanelen geplaatst in 2021)
- Aluminium kozijnen en deuren 
- Airco-installatie en diverse rolluiken/screens
- Keuken (2020), badkamer (2020)
- Bouwjaar 2008
- 137 m² eigen grond
- Oplevering in overleg

Ligging:
Gelegen op loopafstand van diverse jachthavens, Batavia Stad Fashion Outlet en Batavia Haven met diverse horecagelegenheden. Het Marker- en IJsselmeer met al haar watersportmogelijkheden bevinden zich op enkele minuten afstand, evenals de in- en uitvalswegen richting de A6 en Oostvaardersdijk.

Nu bieden vanaf € 575.000,- k.k.
De gestelde vraagprijs betreft een “bieden vanaf prijs”.

Een bod uitbrengen verloopt via het ‘Eerlijk Bieden’ systeem. Vraag de link aan via ons kantoor of klik op de button “Breng een bod uit” op onze website.

Kenmerken