Beschrijving

Kam & Bronotte Makelaars biedt aan: De Stelling 11-15 te Lelystad!

Op zoek naar een ruime en verrassend ingedeelde eindewoning met drie volwaardige slaapkamers en gelegen in een sfeervolle buurt? Dan is deze woning aan de Stelling 11-15 in Lelystad absoluut een bezichtiging waard! Ideaal voor wie graag een huis naar eigen smaak en stijl verbouwd.

De woning heeft een woonoppervlakte van ca. 100 m² en staat op een perceel van 127 m² eigen grond.
Het huis is gebouwd in 1981 en beschikt over een ruime woonkamer, praktische keuken en een achtertuin met overkapping. Met parkeren op eigen terrein en een centrale ligging vormt deze woning een solide basis, waar je met de nodige verbouwing er jouw eigen droomhuis van kan maken.

De bieden vanaf prijs betreft € 325.000,- k.k. De gestelde vraagprijs betreft een bieden vanaf prijs.

Indeling
Begane grond:
Entree/hal met meterkast en toiletruimte. Vanuit de hal bereik je de woonkamer en toegang tot de achtertuin. De woonkamer staat in open verbinding met de keuken aan de voorzijde, die is voorzien van diverse apparatuur. De begane grond is afgewerkt met een laminaatvloer.

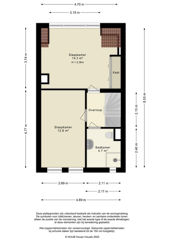
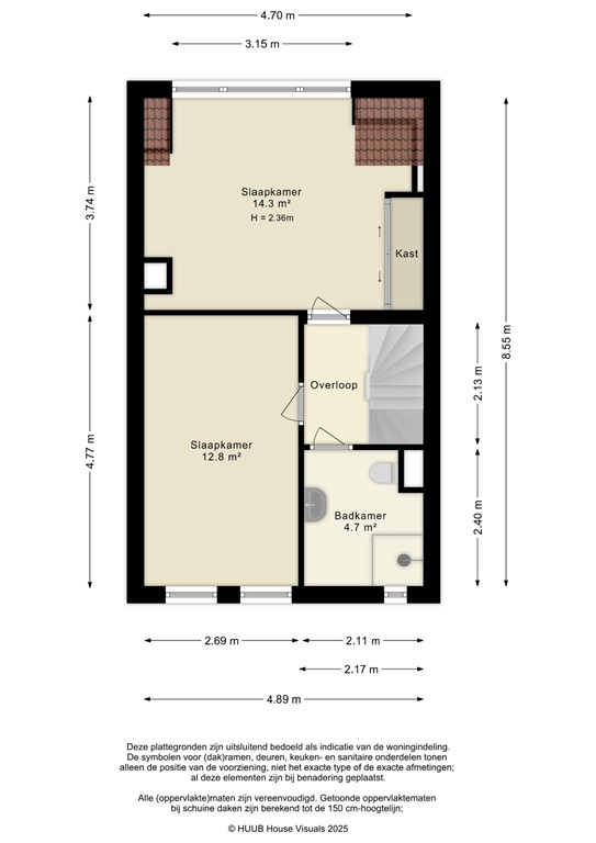
Eerste verdieping:
Overloop met toegang tot 2 ruime slaapkamers ( 12,8 m² en 14,3 m² inclusief dakkapel) en de badkamer. De badkamer is uitgerust met een douchecabine, wastafelmeubel en tweede toilet. De verdieping is tevens ook voorzien van een laminaatvloer.

Tweede verdieping:
Via een trap naar de ruime zolderverdieping met daar nog een extra slaapkamer van ca. 8,8 m² en een wasruimte! Vanuit de slaapkamer bereik je ook het balkon van ca. 5,1 m². Tevens bevindt zich hier de CV-installatie en dus meteen de wasopstelling!

Tuin:
De woning beschikt over een eenvoudige achtertuin met overkapping, waar je heerlijk kunt genieten van het buitenleven. In de voortuin bevindt zich ook nog een vrijstaande stenen berging van ca. 5,9 m² welke is na geïsoleerd en over elektra beschikt.

Bijzonderheden
- Woonoppervlakte ca. 100 m²
- Perceeloppervlakte 127 m² eigen grond
- Bouwjaar 1981
- Energielabel C
- Overkapping aan de achterzijde
- CV-ketel (Vaillant, 2016, in huur via Feenstra)
- Laminaatvloeren door de woning
- Parkeren op eigen terrein
- Slaapkamer met balkon
- Vrijstaande berging
- Achtertuin met achterom

Omgeving:
De Stelling 11-15 is gelegen in sfeervolle wijk. Op korte afstand vind je scholen, supermarkten, sportvoorzieningen en speelgelegenheden. Het NS-station Lelystad ligt op fietsafstand en met de auto bereik je binnen enkele minuten de A6 richting Almere, Amsterdam en de rest van de Randstad.

Maak snel een afspraak voor een bezichtiging en ervaar zelf het wooncomfort en de mogelijkheden van deze woning.

Kenmerken