Beschrijving

De verkoop is gestart! Vanaf nu u zich ook online inschrijven voor één of meerdere bouwnummers via
het inschrijfformulier op de projectwebsite. De inschrijving sluit op maandag 13 april om 12.00 uur.

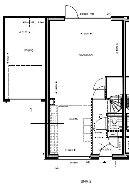
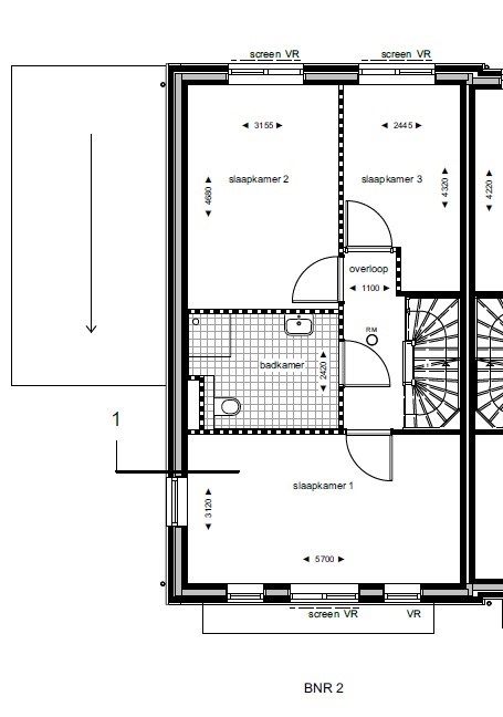
Woningtype Elzenkroon

De twee-onder-een-kapwoning Elzenkroon, biedt royaal en comfortabel wonen in een stijlvolle en eigentijdse setting. Met een beukmaat van 6 meter en een woonoppervlakte variërend van circa 154 m² tot 164 m², bieden deze woningen volop leefruimte voor gezinnen die op zoek zijn naar ruimte, licht en kwaliteit. In totaal worden er 10 woningen van dit type gerealiseerd.

Elke woning beschikt over drie ruime slaapkamers en een energiezuinig karakter met energielabel A++, wat garant staat voor comfortabel en toekomstbestendig wonen met lage energielasten.

Afhankelijk van het bouwnummer hebben de woningen bijzondere extra’s die het woonplezier verder vergroten. Zo zijn er woningen (bouwnummers  1 t/m 4, 7 & 8) prachtig gelegen aan het water of direct naast een groene parkzone (bouwnummers 5 & 6).

Sommige woningen krijgen een karaktervolle dwarskap of een dwarskap in de voorgevel, wat zorgt voor een markante uitstraling en extra ruimtelijkheid. Daarnaast kan een erker (bouwnummers 7 & 16) zorgen voor nog meer lichtinval en een sfeervolle uitbreiding van de leefruimte.

Elzenkroon combineert ruimte, duurzaamheid en een aantrekkelijke ligging tot een ideale gezinswoning met een eigen, onderscheidend karakter.

Kenmerken
• Breedtemaat 6 meter
• Woonoppervlakte van ca. 154 m² tot 164 m2
• Kaveloppervlakte van ca. 254 tot 339 m2
• 3 slaapkamers
• Vaste trap naar tweede verdieping
• Riante tuin op het noordwesten, zuidwesten en zuidoosten
• Energiezuinig en gasloos
• Diverse opties om uw droomwoning te realiseren

Kenmerken