Beschrijving

De verkoop is gestart! Vanaf nu u zich ook online inschrijven voor één of meerdere bouwnummers via
het inschrijfformulier op de projectwebsite. De inschrijving sluit op maandag 13 april om 12.00 uur.

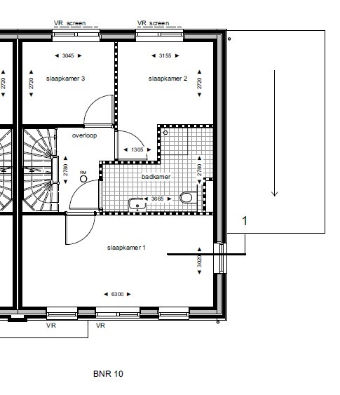
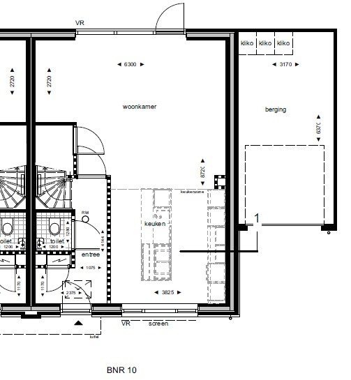
Woningtype Elzenblad

De twee-onder-een-kapwoning Elzenblad combineert een eigentijdse uitstraling met comfortabele leefruimte. Met een royale beukmaat van 6,6 meter en een woonoppervlakte variërend van circa 145 m² tot 155 m² bieden deze woningen een prettige balans tussen ruimte en functionaliteit. Van dit type worden in totaal 6 woningen gerealiseerd. 

De woningen beschikken over drie comfortabele slaapkamers en zijn ontworpen met oog voor duurzaamheid. Dankzij energielabel A++ zijn ze energiezuinig, comfortabel en klaar voor de toekomst. 

Bouwnummer 13 beschikt over extra architectonische accenten die het karakter versterken. Zo zorgt een erker voor extra lichtinval en een ruimtelijk gevoel in de woonkamer. Daarnaast geeft een dwarskap in de voorgevel deze woning een markante uitstraling en extra beleving van ruimte. 

Woningtype Elzenblad is daarmee een aantrekkelijke en complete gezinswoning, waarin comfort, duurzaamheid en een eigentijds ontwerp op harmonieuze wijze samenkomen. 

Kenmerken
• Breedtemaat 6,6 meter
• Woonoppervlakte van ca. 145 m² tot 155 m2
• Kaveloppervlakte van ca 199 tot 273 m2
• 3 slaapkamers
• Vaste trap naar tweede verdieping
• Riante tuin op het zuidoosten en zuidwesten
• Energiezuinig en gasloos
• Diverse opties om uw droomwoning te realiseren

Kenmerken