Beschrijving

Kam & Bronotte Makelaars biedt aan: Botter 42-10 te Lelystad!

KLUSSERS OPGELET! Ruime eengezinswoning met 121 m² woonoppervlakte die jij helemaal naar eigen smaak kunt verbouwen.

In de geliefde wijk Botter staat deze royale tussenwoning met vier slaapkamers, een open zolderverdieping, een tuin op het noordwesten én een vrijstaande stenen berging. Dit is geen standaard instapklare woning: Botter 42-10 is een echte kluswoning.

Met een woonoppervlakte van ca. 121 m² en een perceel van 170 m² eigen grond, biedt dit huis een fantastische basis om volledig naar eigen smaak te moderniseren en af te werken.

Bieden vanaf €300.000 k.k. De gestelde prijs betreft een bieden-vanaf prijs.

Indeling

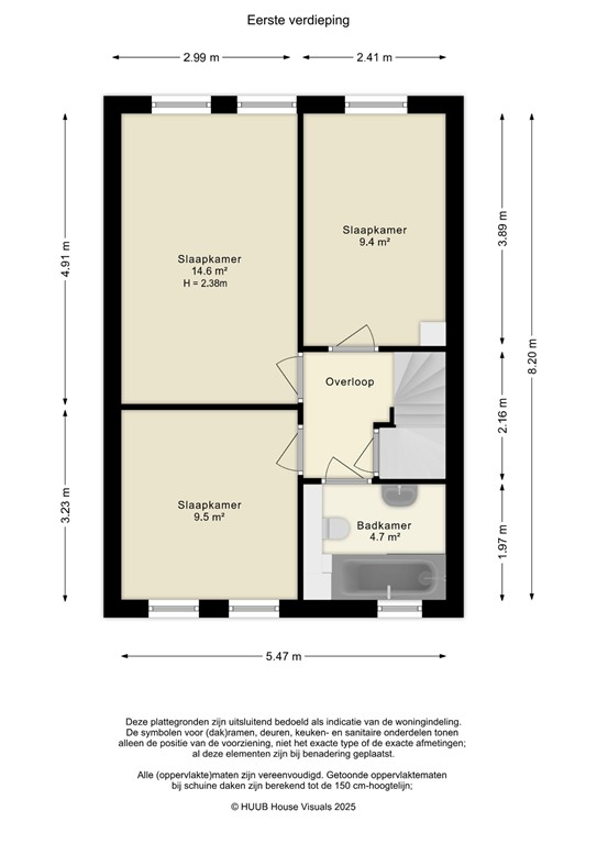
Begane grond:
Entree met meterkast, trapopgang en toiletruimte.
De woonkamer (ca. 30 m²) biedt veel licht en ruimte. Aan de voorzijde bevindt zich de keuken (ca. 6,5 m²). 
Via de woonkamer heb je toegang tot de tuin op het waarbij je in de middag en avond van de zon geniet, met vrijstaande stenen berging (ca. 5,8 m²).

Eerste verdieping:
Drie ruime slaapkamers van ca. 9,4 m², 9,5 m² en 14,6 m².
De badkamer (ca. 4,7 m²) is eenvoudig uitgevoerd en voorzien van ligbad, toilet en wastafel.

Tweede verdieping:
Grote open zolderkamer als vierde slaapkamper van ca. 25,8 m² en een aparte wasruimte/berging van ca. 3,6 m².

Tuin:
De achtertuin ligt op het noordwesten, heeft een prettige diepte en beschikt over een stenen berging en achterom. Ideaal voor een toekomstig nieuw terras of een tuinaanleg naar eigen ontwerp.

Bijzonderheden
- Kluswoning, ideaal voor verbouwers!
- Woonoppervlakte ca. 121 m²
- Perceeloppervlakte 170 m² eigen grond 
- 4 slaapkamers
- Tuin met heerlijke middag & avondzon
- Huurketel uit ca. 2020
- Energielabel B 
- Gelegen in een rustige straat in een kindvriendelijke wijk
- Dichtbij Lelystad centrum

Klussers, starters én creatievelingen: dit is jullie kans! Deze woning biedt een uitstekende basis om volledig naar eigen smaak te moderniseren. Pak de kwast, gereedschapskist of aannemer erbij en tover Botter 42-10 om tot jullie droomwoning!

Nieuwsgierig? Plan een bezichtiging en ontdek de mogelijkheden!

Kenmerken