Beschrijving

Kam & Bronotte Makelaars biedt aan: Botter 41-29 te Lelystad.

Op zoek naar een ruime eengezinswoning met maar liefst 5 slaapkamers, een perceel van 285 m² en een heerlijke tuin op het zuidwesten? Dan is deze woning in de gewilde woonwijk Botter zeker het bekijken waard! Met een woonoppervlak van ca. 124 m², een vernieuwde badkamer (2022), een Intergas HR-combiketel (2020), energielabel C én een gunstige ligging dichtbij het centrum van Lelystad, scholen en voorzieningen, is dit een ideale gezinswoning.

Bieden vanaf € 425.000,- k.k. De gestelde vraagprijs betreft een "bieden vanaf prijs".

Indeling
Begane grond:
Entree/hal met meterkast, toilet en trapopgang. Tuingerichte woonkamer met veel lichtinval en toegang tot de royale achtertuin via openslaande deuren. Aan de voorzijde bevindt zich de keuken, voorzien van diverse inbouwapparatuur, waaronder oven, vaatwasser (2025), koelkast/vriezer en warmwaterboiler. Verder beschikt de beneden verdieping over een keurige laminaat vloer.

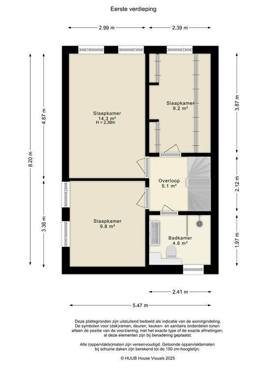
Eerste verdieping:
Overloop, 3 slaapkamers van respectievelijk ca. 14,3 m², 9,8 m² en 9,2 m² afgewerkt met laminaat vloer waarvan één in gebruik als prachtige walk-in closet. Moderne badkamer (2022) uitgerust met regendouche, wastafelmeubel en toilet.

Tweede verdieping:
Op de overloop zijn de cv-ketel en de wasmachineaansluiting centraal geplaatst. Vanuit hier zijn twee ruime slaapkamers (ca. 12,2 m² en 10,9 m²), beide voorzien van vaste kasten, bereikbaar. Tussen deze slaapkamers in ligt een praktische extra bergkamer van ca. 6,2 m², die zich uitstekend leent als inloopkast, hobbyruimte of extra opbergruimte.

Tuin:
De achtertuin is een absolute eyecatcher van deze woning. Met een perceel van maar liefst 285 m² geniet je hier van volop ruimte en vrijheid. Dankzij de gunstige ligging op het zuidwesten is er de hele middag en avond zon, waardoor je tot laat van het buitenleven kunt genieten. De tuin biedt genoeg plek voor meerdere terrassen en gezellige zitjes; ideaal om te borrelen met vrienden of juist rustig te ontspannen in je eigen groene omgeving. Daarnaast is er meer dan genoeg speelruimte voor kinderen of huisdieren.
Aan de voorzijde van de tuin staat een vrijstaande stenen berging (ca. 5,5 m²), perfect voor fietsen, tuingereedschap of extra opslag. De combinatie van de royale afmetingen, de zonnige ligging en de fijne indeling maakt dit een tuin waar je echt alle kanten mee op kunt.

Bijzonderheden:
- Bouwjaar 1983
- Woonoppervlakte ca. 124 m²
- Perceeloppervlakte maar liefst 285 m²
- 5 slaapkamers
- Badkamer vernieuwd in 2022
- CV-ketel Intergas HRE, geplaatst 2020 (onderhoud 2024)
- Schuurdak vervangen in 2024
- Energielabel C
- Tuinligging: zonnig zuidwesten!


Ben jij op zoek naar een ruime gezinswoning met een uitzonderlijk groot perceel op een fijne locatie? Maak dan snel een afspraak voor een bezichtiging bij de Botter 41-29 en ontdek zelf de mogelijkheden!

Kenmerken