Beschrijving

Op een rustige en geliefde locatie staat deze schitterende twee-onder-een-kapwoning, die door de jaren heen met veel zorg, aandacht en smaak is gemoderniseerd. De woning combineert stijlvol comfort met een verzorgde afwerking en is volledig instap klaar. Met een moderne uitstraling, vloerverwarming op de gehele begane grond, vier ruime slaapkamers, een luxe keuken en een heerlijke voor- en achtertuin is dit een huis waar je je direct thuis voelt. Perceeloppervlakte: 281 m² eigen grond.

Bieden vanaf € 425.000,- k.k.

Begane grond
Bij binnenkomst valt direct de verzorgde afwerking op. In de hal bevinden zich de meterkast (vernieuwd in 2016), de verdelers van de vloerverwarming en een modern toilet met zwevend sanitair en fonteintje.

De voormalige garage is omgetoverd tot een ruime zijwoonkamer met grote raampartijen richting de tuin, inbouwspots en een sfeervolle Dik Geurts-houtkachel. Dankzij de dubbele openslaande deuren is er een heerlijke verbinding met buiten.

De gehele begane grond is in 2016 volledig vernieuwd en voorzien van vloerverwarming, Tonzon-vloerisolatie, een lamelparketvloer en gestucte wanden en plafonds. Bovendien heeft de begane grond een plafondhoogte van maar liefst 2,65 meter, wat zorgt voor een heerlijk ruimtelijk en licht gevoel. Alles ademt hier kwaliteit en comfort.

De moderne inbouwkeuken met schiereiland is een echte eyecatcher. Deze is uitgerust met een composiet werkblad, 5-pits gaskookplaat met wokbrander, RVS-afzuigkap, koelkast, vriezer, vaatwasser en combi-oven/magnetron. De keuken biedt daarnaast veel opbergruimte en plaats voor een grote eettafel – perfect voor gezellige diners met familie of vrienden.

Onder de trap bevindt zich een praktische bergkast en naast de keuken is nog een extra opbergkast aanwezig. Aan de voorzijde ligt bovendien een berging van 7.5 m² met wateraansluiting – ideaal als hobbyruimte of opslag.

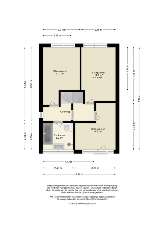
Eerste verdieping
De eerste verdieping is volledig voorzien van gestucte wanden en een moderne laminaatvloer. Zowel de overloop als alle drie de slaapkamers zijn strak afgewerkt en profiteren van een prettige lichtinval.

De badkamer is eigentijds uitgevoerd en compleet ingericht met een inloopdouche, ligbad, zwevend toilet en een wastafelmeubel met geïntegreerde wastafel. Dankzij het raam is er volop daglicht en natuurlijke ventilatie aanwezig.

Tweede verdieping
Op de tweede verdieping bevindt zich een ruime voorzolder met aansluitingen voor wasmachine en droger, de cv-ketel (2011) en de unit van de mechanische ventilatie.
Daarnaast is er een vierde slaapkamer over de volledige lengte van de woning, voorzien van een groot dakraam en veel ruimte – uitstekend te gebruiken als slaap-, werk- of hobbykamer.

Tuin
De woning beschikt over een ca. 13 meter diepe achtertuin met terras en gazon, waar het heerlijk vertoeven is.
Aan de voorzijde ligt een maar liefst 12 meter diepe voortuin op het zuiden, voorzien van gazon en bestrating. 
Daarnaast is er eigen parkeergelegenheid voor twee auto’s.

Het onderhoud van de woning verkeert in goede staat: in 2020 zijn de daksingles vervangen door leisteen dakleien, en zijn dakgoten en regenwaterafvoeren vernieuwd in zink. Het buitenschilderwerk is recent uitgevoerd (2025).

Ligging
Op loop-/ fietsafstand van onder andere AH Voorhof, een tweetal basisscholen en een kinderopvang. Tevens ligt de wijk nabij het bosgebied "Gelderse Hout" en slechts op enkele minuten van de in- en uitvalswegen van Lelystad richting Amsterdam / Groningen en de N302 richting Harderwijk. Ook het openbaar vervoer is wandelend goed bereikbaar.

Bijzonderheden:
Volledig voorzien van HR++-beglazing (2016)
Tonzon-vloerisolatie (2016)
Vloerverwarming gehele begane grond (2016)
Zinken dakgoten en regenwaterafvoeren (2020)
Buitenschilderwerk 2025
Vier slaapkamers
Parkeergelegenheid op eigen terrein voor twee auto’s
Oplevering in overleg

Kenmerken