Beschrijving

Kam & Bronotte Makelaars biedt aan: Akkerkers 1 te Lelystad!

Wonen in een splinternieuwe vrijstaande woning? Niet wachten op nieuwbouw, maar meteen wonen. Dat is precies wat deze moderne en ruime nieuwbouwwoning te bieden heeft! Met maar liefst ca. 171 m² woonoppervlakte, een royale indeling, 3 slaapkamers én een grote zolder is dit de ideale woning voor wie ruimte, comfort en toekomstbestendig wonen zoekt.

Deze woning wordt opgeleverd als perfecte basis: volledig gestuct en klaar om naar eigen smaak af te werken. Denk aan het plaatsen van een keuken en vloer, zonder dat er eerst gesloopt hoeft te worden. Hier creëer je eenvoudig jouw droomhuis!

Bieden vanaf prijs: €750.000 k.k.

Indeling

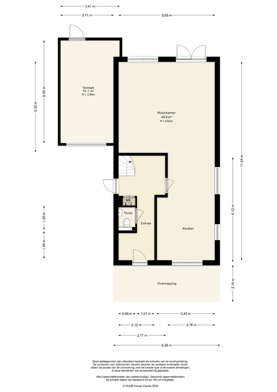
Begane grond:
Via de entree kom je in de hal met meterkast, toilet en trapopgang. De royale woonkamer van ca. 49,9 m² is heerlijk licht dankzij de grote raampartijen en openslaande deuren. De keukenruimte bevindt zich aan de voorzijde en kan volledig naar eigen smaak worden ingericht.
Daarnaast is er een aangebouwde garage van ca. 19,1 m².

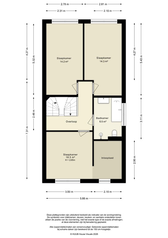
Eerste verdieping:
Overloop met toegang tot 3 ruime slaapkamers van ca. 14,2 m², 14,3 m² en 18,5 m². De badkamer (ca. 6,5 m²) biedt ruimte voor douche, wastafel en toilet. Tevens is er een praktische inloopkast aanwezig.

Tweede verdieping:
Via een vaste trap bereik je de royale zolder van ca. 37,3 m². Ideaal als extra slaapkamer, werkruimte of hobbyruimte.

Tuin:
De woning staat op een ruim perceel met een brede voorzijde, waardoor er volop parkeermogelijkheden op eigen terrein zijn. De tuin dient nog naar eigen wens te worden aangelegd, wat de kans biedt om dit volledig naar eigen smaak te realiseren.

Omgeving:
Gelegen in een moderne en ruim opgezette nieuwbouwwijk in Lelystad, aan een rustig hofje. In de directe omgeving vind je diverse voorzieningen, uitvalswegen en natuur.

Bijzonderheden
- Vrijstaande nieuwbouwwoning (nooit bewoond) 
- Ca. 171 m² woonoppervlakte 
- Perceel ca. 398 m² 
- 3 slaapkamers 
- Royale woonkamer van ca. 50 m² 
- Aangebouwde garage ca. 19 m² 
- Grote zolderverdieping ca. 37 m² (hier kunnen nog 2 slaapkamers gerealiseerd worden)
- Voorlopig energielabel A+++ 
- 12 zonnepanelen 
- Vloerverwarming op de begane grond  
- Unieke kans om volledig naar eigen smaak af te bouwen 

Interesse? Neem snel contact op met Kam & Bronotte Makelaars en plan een bezichtiging. Deze unieke kans wil je niet missen!

Kenmerken