Beschrijving

Kam & Bronotte Makelaars biedt aan: Agoraweg 141 te Lelystad!

Wonen in een splinternieuw appartement waar nog nooit iemand heeft gewoond? Dit moderne 3-kamerappartement uit 2024 biedt jou die unieke kans! De woning is volledig instapklaar, strak afgewerkt en voorzien van alle hedendaagse comfort en duurzaamheid. Hier woon je gasloos, energiezuinig (A+++) en helemaal klaar voor de toekomst.

Bieden vanaf prijs: €385.000 k.k.

Indeling:
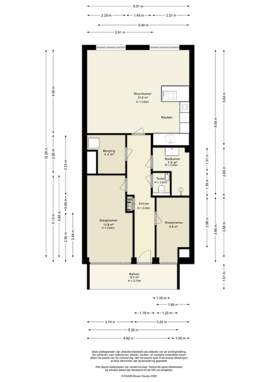
Via de entree kom je binnen in de hal, waar je toegang hebt tot het separate toilet, de meterkast en de overige vertrekken. Vanuit hier loop je door naar de lichte woonkamer van circa 31,6 m², waar de grote raampartijen direct opvallen en zorgen voor een prettige hoeveelheid daglicht. De woonkamer staat in open verbinding met de moderne keuken, die in een U-opstelling is geplaatst en volledig nieuw is, voorzien van diverse inbouwapparatuur.

Terug in de hal zijn de twee slaapkamers te vinden, met een oppervlakte van circa 12,9 m² en 6,5 m², beide van goed formaat en flexibel in te richten als slaap-, werk- of logeerkamer. De badkamer heeft een oppervlakte van circa 4,6 m² en is strak en modern afgewerkt, voorzien van een douche en wastafel. Daarnaast is er een separate toiletruimte aanwezig.

Ook beschikt het appartement over een praktische berging van circa 4,3 m². 

Dit appartement is écht uniek: volledig nieuw en nog nooit bewoond. Alle voorzieningen zijn recent geplaatst, waaronder een warmtepomp, WTW-installatie en een moderne keuken en badkamer. Je bent hier de allereerste bewoner, zonder enige klus- of wachttijd. Dankzij het energielabel A+++ profiteer je bovendien van lage energielasten en hoog wooncomfort.

Bijzonderheden:
- Bouwjaar 2024 
- Woonoppervlakte circa 74 m² 
- Energielabel A+++ 
- Volledig gasloos 
- Warmtepomp en WTW-installatie 
- Vloerverwarming door het gehele appartement 
- Moderne open keuken met inbouwapparatuur 
- Twee slaapkamers 
- Strakke badkamer en separaat toilet
- Inpandige berging circa 4,3 m² 
- Actieve VvE, bijdrage ca. €133,79 per maand 
- Instapklaar en direct beschikbaar 

Omgeving:
Gelegen op een centrale locatie in Lelystad, nabij winkels, horeca, openbaar vervoer en uitvalswegen.
Ben jij op zoek naar een gloednieuw appartement zonder wachttijd? Neem dan snel contact op met ons en plan een bezichtiging!

Kenmerken