Beschrijving

Kam & Bronotte Makelaars biedt aan: Wisentstraat 5 te Almere!

Op zoek naar een verzorgde eengezinswoning met zonnige tuin, berging, nette afwerking en een gunstige ligging in Almere Buiten? Dan is deze nette woning aan de Wisentstraat 5 precies wat je zoekt!

De woning is gebouwd in 1993, uitstekend onderhouden en beschikt over een sfeervolle woonkamer, 4 slaapkamers, een nette keuken met inbouwapparatuur, een complete badkamer en dakkapel! Dankzij de gunstige ligging woon je hier rustig, kindvriendelijk en toch vlak bij alle voorzieningen van Almere Buiten.

Bieden vanaf €425.000 k.k. De gestelde vraagprijs betreft een “bieden vanaf prijs”.

Indeling van de woning

Begane grond:
Entree via de hal met meterkast, toiletruimte en trapopgang. De tuingerichte woonkamer is voorzien van een plavuizen vloer en openslaande deuren die zorgen voor veel lichtinval. De sfeervolle open haard in de woonkamer zorgt voor extra warmte en gezelligheid in huis. Aan de voorzijde bevindt zich de keuken in L-opstelling, uitgerust met diverse inbouwapparatuur. De woonkamer geeft toegang tot de zonnige achtertuin met sierbestrating, zonnescherm, buitenverlichting en houten berging.

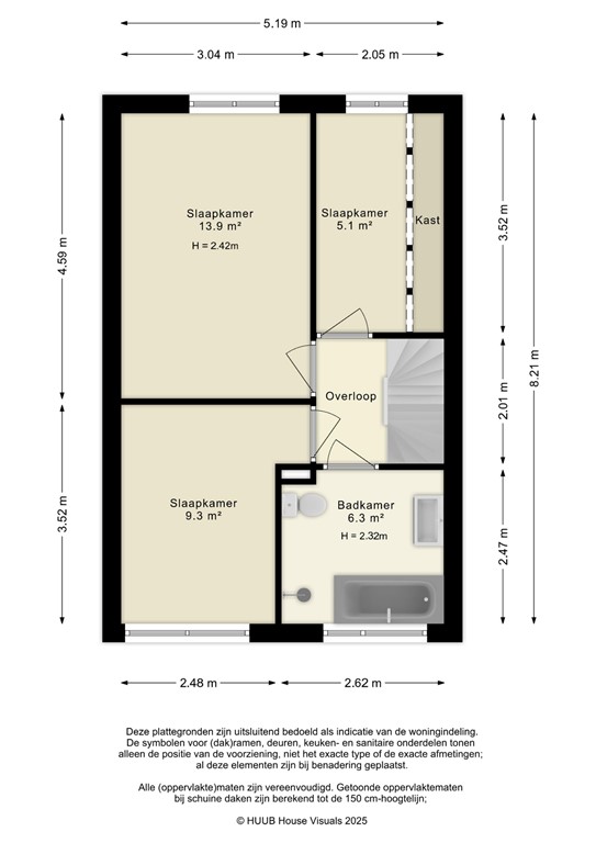
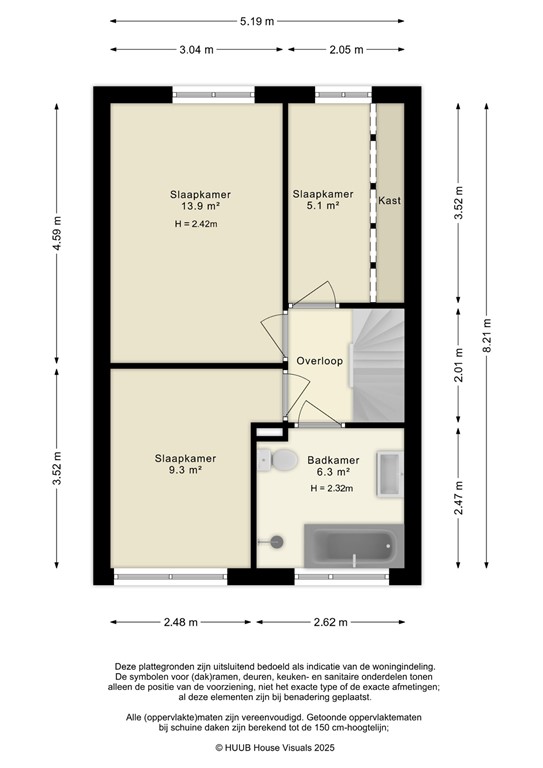
Eerste verdieping:
Overloop met toegang tot drie slaapkamers van ca. 5,1 m², 9,3 m² en 13,9  m², alle voorzien van een nette laminaatvloer. De badkamer is compleet uitgevoerd met douche, wastafel en toilet.

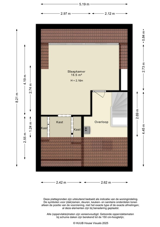
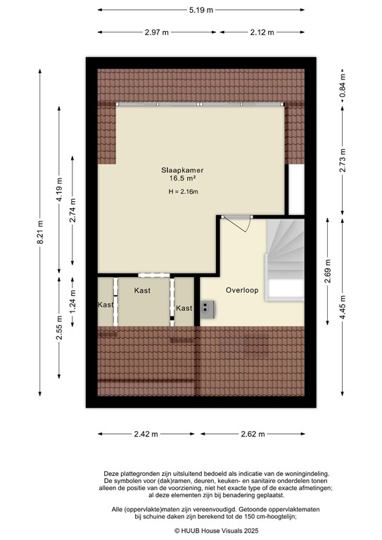
Tweede verdieping:
Via een vaste trap bereik je de ruime zolderverdieping met dakkapel, waar zich de vierde slaapkamer bevindt van ca. 16,5 m².
Deze verdieping is keurig afgewerkt met een laminaatvloer en beschikt over een vaste kast.
Daarnaast vind je hier de opstelplaats voor de wasmachine en droger (aparte groep aanwezig) én de cv-installatie. Een praktische én lichte ruimte!

Tuin:
De verzorgde achtertuin is onderhoudsvriendelijk aangelegd met bestrating en beplanting. Dankzij de ligging op het westen geniet je hier volop van de middag- en avondzon én van veel privacy.
Via de openslaande deuren vanuit de woonkamer stap je direct de tuin in: een heerlijke plek om te ontspannen of te genieten van lange zomeravonden.

Achterin de tuin bevindt zich een overkapping van ca. 4,0 x 1,9 meter, ideaal voor een lounge- of zitgedeelte. Daarnaast zijn er twee separate bergingen aanwezig:
• Een berging van ca. 6,4 m²
• Een tweede berging van ca. 4,3 m²
Beide ruimtes zijn praktisch voor het stallen van fietsen, tuinmeubilair of gereedschap.
De voortuin is eveneens verzorgd en voorzien van buitenverlichting, wat het geheel een nette en uitnodigende uitstraling geeft.

Bijzonderheden:
•	Bouwjaar 1993
•	Woonoppervlakte ca. 113 m²
•	Perceeloppervlakte 129 m² 
•	Energielabel B 
•	Sfeervolle open haard in de woonkamer
•	Tuin op het westen
•	Dakkapel aanwezig
•	Voorzien van terrasoverkapping
•	Achterzijde buitenwerk geschilderd in 2023
•	Glasvezel aanwezig
•	Rustige, kindvriendelijke straat nabij scholen, supermarkt, bushalte en uitvalswegen

Interesse?
Ben jij op zoek naar een verzorgde en sfeervolle woning op een fijne plek in Almere Buiten? Plan dan snel een bezichtiging en ontdek de Wisentstraat 5!

Kenmerken